Добро пожаловать на http://vipplan.ru

Випплан Изобильный - это тысячи проектов домов в нашем каталоге!

Вы всегда сможете найти для себя проект дома вашей мечты! Даже если этого не случилось, мы готовы в любую минуту предложить проект индивидуального дома.

Забыли пароль?
Вы еще не регистрировались?

Перейдите по ссылке ниже на страницу регистрации.

Регистрация...

Внимание!!!

В проектную документацию могут быть внесены изменения любой сложности, в соответствии в Вашими пожеланиями!

Полезные статьи

Мероприятия по получению разрешения на строительство в Изобильном

Хотите построить дом в Изобильном? Не знаете с чего начать? Для начала, нужно заказать проект, а после получить разрешение на строительство. ...

Выбор проекта дома в Изобильном. Типовой или индивидуальный?

Строительство дома начинается с выбора проекта. От него будет зависит удобство, комфорт и функциональность Вашего будущего дома. Какой проект выбрать? В каталоге проектов домов VIPplan Изобильный предоставлен огромный выбор проектов на любой вкус и кошелек. В итоге выбор сводится к покупке типового проекта дома или заказа индивидуального проекта. Для упращения задачи, расскажем о каждом варианте по отдельности...

Проекты домов и коттеджей > Каталог проектов домов > Одноэтажный дом с гаражом, мансардой и просторной гостиной. Vg3781

Одноэтажный дом с гаражом, мансардой и просторной гостиной. Vg3781

Одноэтажный дом с гаражом, мансардой и просторной гостиной.
Зарегистрируйтесь

Проект № Vg3781


Техническое описание
Общая площадь: 268.81 м2
Жилая площадь: 120.57 м2
Высота здания: 10.88 м
Размеры дома: 12.69м×24.94м
Кол-во комнат: 5
Цокольный этаж: нет
Гараж: нет
Мансарда: есть

Kонструкция
Фундамент: свайный
Перекрытия: монолитные

Архитектурный раздел
Конструктивный раздел
АР+КР - 72 000 (Со скидкой 20%)
Одноэтажный дом с гаражом, мансардой и просторной гостиной с размерами здания 12.96 х 24,94 м. Фундамент – свайно-ростверковый буронабивной. Наружные стены – керамические блоки с утеплением минеральной ватой, вентилируемым воздушным зазором и отделкой облицовочным кирпичом/ штукатурка Внутренние стены – керамические блоки. Перегородки 1 этажа - пустотелый кирпич толщиной, мансарды - каркасные с ГКЛ на металлическом каркасе Пол 1 этажа - пол по монолитной плите. Межэтажное перекрытие - монолитная плита. Крыша двускатная. Кровля – фальц
Генплан застройки участка / Паспорт проекта 7000 руб / 10000 руб
Инженерный раздел (полный) 134500 руб
Смета на строительство 67250 руб
Теплотехнический расчет материалов стен Бесплатно
Стоимость проекта со незначительнми изменениями 83250 руб
Стоимость проекта со средними изменениями* 103500 руб
Стоимость проекта со значительными изменениями** 108800 руб

План первого этажа


Тамбур - 7,45 м2
Холл - 2,83 м2
Кухня - 15,13 м2
Гостиная - 37,09 м2
Кладовая - 9,46 м2
Гараж -55,78 м2
С/у - 3,21 м2
Бойлерная - 6,39 м2

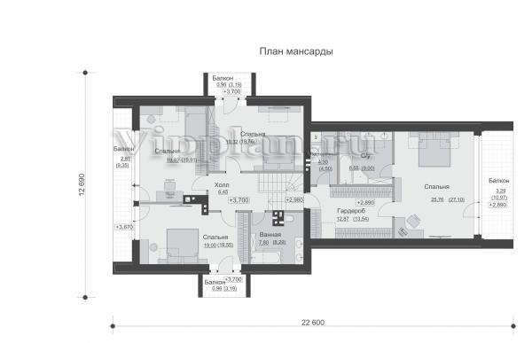
План мансардного этажа


Холл - 6,45 м2
Спальня - 19,32 (19,76) м2
Ванная - 7,80 (8,29) м2
Гардероб - 12,87 (13,54) м2
Спальня - 19,00 (19,55) м2
Спальня — 25,76 (27,10) м2
Спальня — 19,40 (19,91) м2
Балкон — 0,96 (3,19) м2
Балкон — 0,96 (3,19) м2
Балкон — 2,81 (9,35) м2
Балкон — 3,29 (10,97) м2
Постирочная — 4,30 (4,50) м2
С/у — 8,55 (9,00) м2
Одноэтажный дом с гаражом, мансардой и просторной гостиной. Одноэтажный дом с гаражом, мансардой и просторной гостиной. Одноэтажный дом с гаражом, мансардой и просторной гостиной. Одноэтажный дом с гаражом, мансардой и просторной гостиной.

Модификации проектов

Внесение изменений и привязка к участку строительства

В любой из проектов от компании VIPplan - Изобильный по вашему желанию могут быть внесены изменения в материалы стен, материалы наружной отделки дома, а также будет произведена адаптация проекта под конкретный регион строительства (с учетом грунтов региона, геологических особенностей вашего участка и местных климатических условий) - БЕСПЛАТНО !!! (кроме проектов со скидкой и проектов наших партнеров).

Любой из проектов, размещенных на сайте izobilnyiy.vipplan.ru мы можем выполнить из требуемых вам строительных материалов: ячеистый бетон (газобетон, пеноблок), керамоблок, кирпич, шлакоблок, бетонный блок, дерево (брус, клееный брус), каркасная технология (деревянный каркас, металлокаркас (ЛСТК)).

Фасад дома и его наружную отделку так же возможно выполнить с применением различных облицовочных материалов: структурной штукатурки, (с утеплителем и без), сайдингом (пластиковый или металлосайдинг), фиброплитами, кирпича.

 
6 Избранные
проекты

Доставка проектов по России: Москва (Московская область), Санкт-Петербург (Ленинградская область), Краснодар, Ростов-на-Дону, Ставрополь, Сочи, Волгоград, Новосибирск, Белгород, Брянск, Воронеж, Саратов, Хабаровск, Астрахань, Нальчик, Владикавказ, Екатеринбург, Тюмень, Самара, Нижний Новгород, Казань, Пермь, Уфа, Челябинск, Красноярск, Ханты-Мансийск, Иркутск, Курган, Оренбург, Омск, Томск, Барнаул, Новокузнецк, Кемерово, Абакан, Чита, Якутск, Южно-Сахалинск, Петропавловск-Камчатский и страны ближнего зарубежья: Белоруссия, Украина, Казахстан