Добро пожаловать на http://vipplan.ru

Випплан Изобильный - это тысячи проектов домов в нашем каталоге!

Вы всегда сможете найти для себя проект дома вашей мечты! Даже если этого не случилось, мы готовы в любую минуту предложить проект индивидуального дома.

Забыли пароль?
Вы еще не регистрировались?

Перейдите по ссылке ниже на страницу регистрации.

Регистрация...

Внимание!!!

В проектную документацию могут быть внесены изменения любой сложности, в соответствии в Вашими пожеланиями!

Полезные статьи

Утепление стен дома изнутри

Утепление стен дома изнутри – это не правильный метод теплоизоляции помещения и используется в самом крайнем случае, когда других вариантов уже не остается. Как правило, утепление стен изнутри выполняется по незнанию или вынужденно, поскольку, теплоизоляция внутренних помещений дома другим способом невозможна. Вопросы теплоизоляции необходимо решать на стадии проектирования дома или коттеджа, а не тогда когда дом уже построен и приходится исправлять совершенные ошибки по факту....

Вентиляция в подвале дома

Без подвала или цокольного этажа в частном доме, в наше время, не обойтись. Это полезное для дома помещение должно быть хорошо вентилируемым. В доме с подвалом должна быть хорошая циркуляция воздуха, для сохранения находящихся в нем продуктов. Отсутствие вентиляции  может привести к образованию плесени и сырости не только в подвале, но и во всем доме....

Проекты домов и коттеджей > Каталог проектов домов > Одноэтажный дом с мансардой Vg1051

Одноэтажный дом с мансардой Vg1051

Одноэтажный дом с мансардой
Зарегистрируйтесь

Проект № Vg1051


Техническое описание
Общая площадь: 109.41 м2
Жилая площадь: 73.14 м2
Высота здания: 9.25 м
Размеры дома: 8.1м×8.4м
Кол-во комнат: 5
Цокольный этаж: нет
Гараж: нет
Мансарда: есть

Kонструкция
Фундамент: Ленточный монолитный
Перекрытия: Деревянные балки
Материал стен: Газобетон

Архитектурный раздел
Конструктивный раздел
АР+КР - 48 000 (Со скидкой 20%)
Проект индивидуального одноэтажного жилого дома с мансардой с размерами здания 8,10 x 8,40 м. Наружная отделка здания –фасадная штукатурка. Фундамент – ленточный монолитный ( под несущими стенами). Наружные стены – из газобетонного блока, утеплителя — минеральная вата с фасадной штукатуркой. Внутренние стены - изгазобетонного блока. Перегородки – каркасные с ГКЛ на металлическом каркасе. Пол первого этажа - пол по грунту. Межэтажное перекрытие - деревянные балки. Крыша двухскатная. Кровля – металлочерепица. Окна — металлопластиковые
Генплан застройки участка / Паспорт проекта 7000 руб / 10000 руб
Инженерный раздел (полный) 54500 руб
Смета на строительство 27250 руб
Теплотехнический расчет материалов стен Бесплатно
Стоимость проекта со незначительнми изменениями 57250 руб
Стоимость проекта со средними изменениями* 65500 руб
Стоимость проекта со значительными изменениями** 67600 руб

План первого этажа


Тамбур — 2,72 м2
Бойлерная — 5,38 м2
Холл — 2,99 м2
Кухня — 9,36 м2
С/у — 2,76 м2
Гостиная — 22,87 м2
Спальня — 8,64 м2

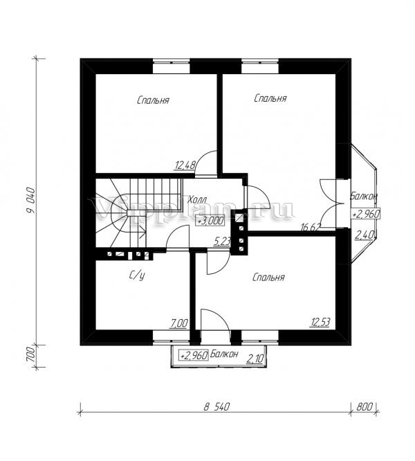
План мансардного этажа


Холл — 5,23 м2
Спальня — 12,48 м2
Спальня — 16,62 м2
Спальня — 12,53 м2
С/у — 7 м2
Одноэтажный дом с мансардой Одноэтажный дом с мансардой Одноэтажный дом с мансардой Одноэтажный дом с мансардой

Модификации проектов

Внесение изменений и привязка к участку строительства

В любой из проектов от компании VIPplan - Изобильный по вашему желанию могут быть внесены изменения в материалы стен, материалы наружной отделки дома, а также будет произведена адаптация проекта под конкретный регион строительства (с учетом грунтов региона, геологических особенностей вашего участка и местных климатических условий) - БЕСПЛАТНО !!! (кроме проектов со скидкой и проектов наших партнеров).

Любой из проектов, размещенных на сайте izobilnyiy.vipplan.ru мы можем выполнить из требуемых вам строительных материалов: ячеистый бетон (газобетон, пеноблок), керамоблок, кирпич, шлакоблок, бетонный блок, дерево (брус, клееный брус), каркасная технология (деревянный каркас, металлокаркас (ЛСТК)).

Фасад дома и его наружную отделку так же возможно выполнить с применением различных облицовочных материалов: структурной штукатурки, (с утеплителем и без), сайдингом (пластиковый или металлосайдинг), фиброплитами, кирпича.

 
6 Избранные
проекты

Доставка проектов по России: Москва (Московская область), Санкт-Петербург (Ленинградская область), Краснодар, Ростов-на-Дону, Ставрополь, Сочи, Волгоград, Новосибирск, Белгород, Брянск, Воронеж, Саратов, Хабаровск, Астрахань, Нальчик, Владикавказ, Екатеринбург, Тюмень, Самара, Нижний Новгород, Казань, Пермь, Уфа, Челябинск, Красноярск, Ханты-Мансийск, Иркутск, Курган, Оренбург, Омск, Томск, Барнаул, Новокузнецк, Кемерово, Абакан, Чита, Якутск, Южно-Сахалинск, Петропавловск-Камчатский и страны ближнего зарубежья: Белоруссия, Украина, Казахстан