Добро пожаловать на http://vipplan.ru

Випплан Изобильный - это тысячи проектов домов в нашем каталоге!

Вы всегда сможете найти для себя проект дома вашей мечты! Даже если этого не случилось, мы готовы в любую минуту предложить проект индивидуального дома.

Забыли пароль?
Вы еще не регистрировались?

Перейдите по ссылке ниже на страницу регистрации.

Регистрация...

Внимание!!!

В проектную документацию могут быть внесены изменения любой сложности, в соответствии в Вашими пожеланиями!

Полезные статьи

Комбинированные дома

Посмотрите, насколько далеко шагнула архитектура за последние десятилетия. Сколько изменилось в облике современных городов. А задумывались ли наши родители, о том что они увидят необыкновенные небоскребы и элитные многоквартирные дома, чьи фасады напоминают обруганную капиталистическую действительность. У людей появилась возможность построить дом за городом и в тишине на природе, реализовать любые дизайнерские фантазии. Те, кто может позволить себе частный дом, не ограничены финансами. Для многих частный дом – это показатель их материального благополучия, поэтому никто из них не хочет испол...

Выбор проекта дома в Изобильном

Выбор проекта дома может завести семью в тупик. Прийти к одному конкретному мнению всем членам семьи очень сложно. Кому-то по душе, чтобы дом был большой и одноэтажный, с красивой террасой или верандой, кому-то хочется жить в двухэтажном доме с балконом. Детям, в основном, нравятся дома с мансардой....

Проекты домов и коттеджей > Каталог проектов домов > Проект одноэтажного дома с мансардой и гаражом Vg1262

Проект одноэтажного дома с мансардой и гаражом Vg1262

Проект одноэтажного дома с мансардой и гаражом
Зарегистрируйтесь

Проект № Vg1262


Техническое описание
Общая площадь: 228.82 м2
Жилая площадь: 127.05 м2
Высота здания: 9.68 м
Размеры дома: 17.68м×10.18м
Кол-во комнат: 6
Цокольный этаж: нет
Гараж: нет
Мансарда: есть

Kонструкция
Фундамент: Ленточный
Перекрытия: Сборные ж/б плиты
Материал стен: Керамоблок

Архитектурный раздел
Конструктивный раздел
АР+КР - 64 000 (Со скидкой 20%)
Проект индивидуального одноэтажного жилого дома с мансардой с размерами здания 17,68 x 10,18 м. Наружная отделка здания – облицовочный кирпич. Фундамент – ленточный, монолитный ж/б. Наружные стены – камень керамический крупноформатный «Poromax». Внутренние стены и перегородки - кирпич забутовочный. Пол первого этажа - пол по грунту. Межэтажное перекрытие — сборные ж/б плиты перекрытия. Крыша многоскатная. Кровля – битумная черепица. Окна — металлопластиковые
Генплан застройки участка / Паспорт проекта 7000 руб / 10000 руб
Инженерный раздел (полный) 114500 руб
Смета на строительство 57250 руб
Теплотехнический расчет материалов стен Бесплатно
Стоимость проекта со незначительнми изменениями 74250 руб
Стоимость проекта со средними изменениями* 91500 руб
Стоимость проекта со значительными изменениями** 96000 руб

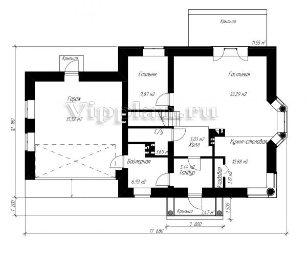
План первого этажа


Тамбур — 5,44 м2
Холл — 5,03 м2
Гостиная — 33,29 м2
Кухня — 10,88 м2
Кладовая — 1,19 м2
Спальня — 9,87 м2
С/у — 3,60 м2
Бойлерная — 6,93 м2
Гараж — 35,52 м2

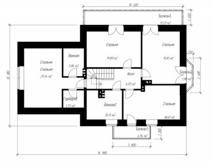
План мансардного этажа


Холл — 6,93 м2
Спальня — 19,89 м2
Спальня — 19,81 м2
Спальня — 18,65 м2
Ванная — 10,13 м2
Ванная — 5,84 м2
Гардероб — 3,73 м2
Спальня — 25,54 м2
Проект одноэтажного дома с мансардой и гаражом Проект одноэтажного дома с мансардой и гаражом Проект одноэтажного дома с мансардой и гаражом Проект одноэтажного дома с мансардой и гаражом

Модификации проектов

Внесение изменений и привязка к участку строительства

В любой из проектов от компании VIPplan - Изобильный по вашему желанию могут быть внесены изменения в материалы стен, материалы наружной отделки дома, а также будет произведена адаптация проекта под конкретный регион строительства (с учетом грунтов региона, геологических особенностей вашего участка и местных климатических условий) - БЕСПЛАТНО !!! (кроме проектов со скидкой и проектов наших партнеров).

Любой из проектов, размещенных на сайте izobilnyiy.vipplan.ru мы можем выполнить из требуемых вам строительных материалов: ячеистый бетон (газобетон, пеноблок), керамоблок, кирпич, шлакоблок, бетонный блок, дерево (брус, клееный брус), каркасная технология (деревянный каркас, металлокаркас (ЛСТК)).

Фасад дома и его наружную отделку так же возможно выполнить с применением различных облицовочных материалов: структурной штукатурки, (с утеплителем и без), сайдингом (пластиковый или металлосайдинг), фиброплитами, кирпича.

 
6 Избранные
проекты

Доставка проектов по России: Москва (Московская область), Санкт-Петербург (Ленинградская область), Краснодар, Ростов-на-Дону, Ставрополь, Сочи, Волгоград, Новосибирск, Белгород, Брянск, Воронеж, Саратов, Хабаровск, Астрахань, Нальчик, Владикавказ, Екатеринбург, Тюмень, Самара, Нижний Новгород, Казань, Пермь, Уфа, Челябинск, Красноярск, Ханты-Мансийск, Иркутск, Курган, Оренбург, Омск, Томск, Барнаул, Новокузнецк, Кемерово, Абакан, Чита, Якутск, Южно-Сахалинск, Петропавловск-Камчатский и страны ближнего зарубежья: Белоруссия, Украина, Казахстан