Добро пожаловать на http://vipplan.ru

Випплан Изобильный - это тысячи проектов домов в нашем каталоге!

Вы всегда сможете найти для себя проект дома вашей мечты! Даже если этого не случилось, мы готовы в любую минуту предложить проект индивидуального дома.

Забыли пароль?
Вы еще не регистрировались?

Перейдите по ссылке ниже на страницу регистрации.

Регистрация...

Внимание!!!

В проектную документацию могут быть внесены изменения любой сложности, в соответствии в Вашими пожеланиями!

Полезные статьи

Печи и камины в частном доме

Спросите любого человека, и вы поймете, что каждый человек мечтает иметь свой собственный дом, который он сможет обустроить так, как ему хочется. Этот дом будет полон уюта, тепла, света и комфорта, а главное, что, придя с работы, человек сможет запросто отдохнуть у своего очага.  Нет никакой альтернативы перед выбором печи или камина. Эти две вещи не сможет  заменить ни искусственный свет, ни солнечное освещение. Камин и печь, с древности, считаются предметом роскоши. Ни один большой дом не может обойтись без них, поскольку если удастся сесть и посидеть перед этим местом, то долго нельзя будет...

Перекрытия в доме

Перекрытия – одно из важнейших составляющих строящегося дома. Это горизонтальная внутренняя защитная конструкция, разделяющая по уровню смежные помещения дома. По назначению выделяют подвальные, межэтажные и чердачные перекрытия. При проектировании домов и зданий различного назначения, требования к межэтажным перекрытиям определяются их местоположением и функциями разделяемых помещений: надподвальные, межэтажные, чердачные и т.д....

Проекты домов и коттеджей > Каталог проектов домов > Проект одноэтажного дома с мансардой Vg1166

Проект одноэтажного дома с мансардой Vg1166

Проект одноэтажного дома с мансардой
Зарегистрируйтесь

Проект № Vg1166


Техническое описание
Общая площадь: 209.16 м2
Жилая площадь: 114.6 м2
Высота здания: 9.71 м
Размеры дома: 16.02м×10.22м
Кол-во комнат: 6
Цокольный этаж: нет
Гараж: нет
Мансарда: есть

Kонструкция
Фундамент: Ленточный
Перекрытия: Сборные ж/б плиты
Материал стен: Бетонные блоки

Архитектурный раздел
Конструктивный раздел
АР+КР - 64 000 (Со скидкой 20%)
Проект индивидуального одноэтажного жилого дома с мансардой с азмерами здания 16,02 x 10,22м. Наружная отделка здания - фасадная штукатурка. Кровля - гибкая черепица. Площади помещений, указанные в проекте, даны без учета внутренней отделки. Отделка вентканалов и дымоходов - фасадная штукатурка. Фундамент - ленточный, монолитный, ж/б. Наружные стены дома: керамзитоблок (1,5 блока), ЭПП, отделка фасадной штукатуркой. Внутренние стены: - керамзитоблоки. - кирпич. Перегородки: - Керамзитоблоки перегородочные. Пол первого этажа - пол по грунту. Пол мансардного этажа - сборные ж/б плиты перекрытия. Потолок мансардного этажа - по затяжкам стропильной системы. Крыша многоскатная. Перемычки - монолитные и сварные из профиля проката. Окна - металлопластиковые, выполненные по индивидуальному заказу. Лестница - ж/б ,выполняется по индивидуальному заказу.
Генплан застройки участка / Паспорт проекта 7000 руб / 10000 руб
Инженерный раздел (полный) 104500 руб
Смета на строительство 52250 руб
Теплотехнический расчет материалов стен Бесплатно
Стоимость проекта со незначительнми изменениями 74750 руб
Стоимость проекта со средними изменениями* 90500 руб
Стоимость проекта со значительными изменениями** 94600 руб

План первого этажа


Тамбур — 3,50 м2
Холл — 3,44 м2
Гостиная — 28,01 м2
Кухня — 10,62 м2
Кладовая — 1,15 м2
Гостевая — 10,16 м2
С/у — 3,76 м2
Бойлерная — 7,08 м2
Гараж — 39,19 м2

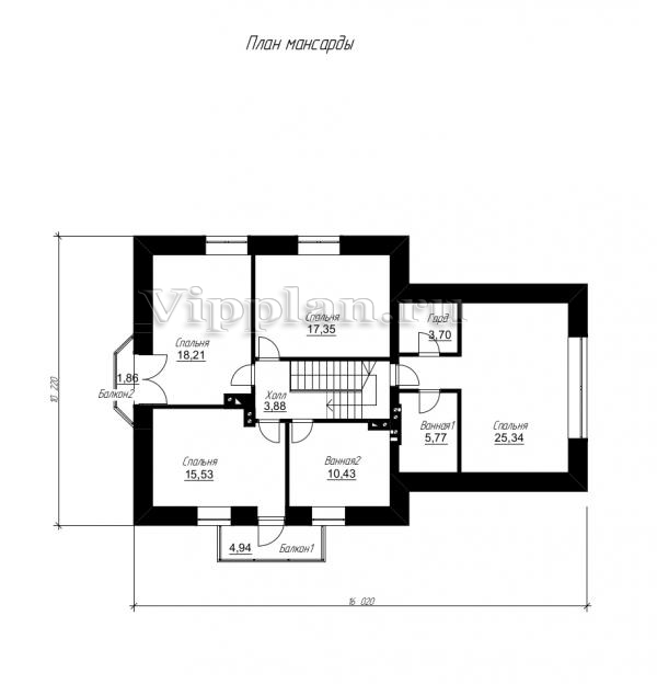
План мансардного этажа


Холл — 3,88 м2
Спальня — 17,35 м2
Спальня — 18,21 м2
Спальня — 15,53 м2
Ванная 2 — 10,43 м2
Гардероб — 3,7 м2
Ванная 1 — 5,77 м2
Спальня — 25,34 м2
Проект одноэтажного дома с мансардой Проект одноэтажного дома с мансардой Проект одноэтажного дома с мансардой Проект одноэтажного дома с мансардой

Модификации проектов

Внесение изменений и привязка к участку строительства

В любой из проектов от компании VIPplan - Изобильный по вашему желанию могут быть внесены изменения в материалы стен, материалы наружной отделки дома, а также будет произведена адаптация проекта под конкретный регион строительства (с учетом грунтов региона, геологических особенностей вашего участка и местных климатических условий) - БЕСПЛАТНО !!! (кроме проектов со скидкой и проектов наших партнеров).

Любой из проектов, размещенных на сайте izobilnyiy.vipplan.ru мы можем выполнить из требуемых вам строительных материалов: ячеистый бетон (газобетон, пеноблок), керамоблок, кирпич, шлакоблок, бетонный блок, дерево (брус, клееный брус), каркасная технология (деревянный каркас, металлокаркас (ЛСТК)).

Фасад дома и его наружную отделку так же возможно выполнить с применением различных облицовочных материалов: структурной штукатурки, (с утеплителем и без), сайдингом (пластиковый или металлосайдинг), фиброплитами, кирпича.

 
6 Избранные
проекты

Доставка проектов по России: Москва (Московская область), Санкт-Петербург (Ленинградская область), Краснодар, Ростов-на-Дону, Ставрополь, Сочи, Волгоград, Новосибирск, Белгород, Брянск, Воронеж, Саратов, Хабаровск, Астрахань, Нальчик, Владикавказ, Екатеринбург, Тюмень, Самара, Нижний Новгород, Казань, Пермь, Уфа, Челябинск, Красноярск, Ханты-Мансийск, Иркутск, Курган, Оренбург, Омск, Томск, Барнаул, Новокузнецк, Кемерово, Абакан, Чита, Якутск, Южно-Сахалинск, Петропавловск-Камчатский и страны ближнего зарубежья: Белоруссия, Украина, Казахстан