Добро пожаловать на http://vipplan.ru

Випплан Изобильный - это тысячи проектов домов в нашем каталоге!

Вы всегда сможете найти для себя проект дома вашей мечты! Даже если этого не случилось, мы готовы в любую минуту предложить проект индивидуального дома.

Забыли пароль?
Вы еще не регистрировались?

Перейдите по ссылке ниже на страницу регистрации.

Регистрация...

Внимание!!!

В проектную документацию могут быть внесены изменения любой сложности, в соответствии в Вашими пожеланиями!

Полезные статьи

Дом это прекрасное вложение

Современный рынок недвижимости диктует свои правила. Цены на землю и недвижимость в Изобильном постоянно растут и вынуждают по-другому смотреть на покупку собственного дома. Не только со стороны получения удобного, благоустроенного жилья, но и со стороны капитализации и инвестировании своих средств...

Сборные фундаменты

В наше время все большую популярность при строительстве дома приобретают сборные бетонные и железобетонные блоки. Их использование значительно сокращает время работ и снижает их трудоемкость....

Проекты домов и коттеджей > Каталог проектов домов > Проект современного коттеджа с мансардой Vg1187

Проект современного коттеджа с мансардой Vg1187

Проект современного коттеджа с мансардой
Зарегистрируйтесь

Проект № Vg1187


Техническое описание
Общая площадь: 67.95 м2
Жилая площадь: 59.51 м2
Высота здания: 7.92 м
Размеры дома: 6.48м×10.2м
Кол-во комнат: 2
Цокольный этаж: нет
Гараж: нет
Мансарда: есть

Kонструкция
Фундамент: Монолитная ж/б плита
Перекрытия: Металлические балки
Материал стен: Опалубка

Архитектурный раздел
Конструктивный раздел
АР+КР - 40 000 (Со скидкой 20%)
Проект индивидуального одноэтажного жилого дома с мансардой с размерами 6.48 x 10.20 м. Наружная отделка здания – декоративная фасадная штукатурка. Отделка цоколя – клинкерная плитка. Фундамент – монолитная ж/б плита (под всей площадью дома). Наружные стены – запроектированы по технологии несъемной опалубки Velox с отделкой декоративной фасадной штукатуркой. Внутренние стены – запроектированы по технологии несъемной опалубки Velox. Пол 1-го этажа – пол по фундаментной плите. Перекрытия межэтажное — металлические балки перекрытия. Перекрытие чердачное – деревянные балки (затяжки) с использованием теплошумоизоляционных материалов. Крыша - двускатная. Материал кровли – металлочерепица. Окна - металлопластиковые, выполненные по индивидуальному заказу.
Генплан застройки участка / Паспорт проекта 7000 руб / 10000 руб
Инженерный раздел (полный) 50000 руб
Смета на строительство 25000 руб
Теплотехнический расчет материалов стен Бесплатно
Стоимость проекта со незначительнми изменениями 48300 руб
Стоимость проекта со средними изменениями* 53400 руб
Стоимость проекта со значительными изменениями** 54800 руб

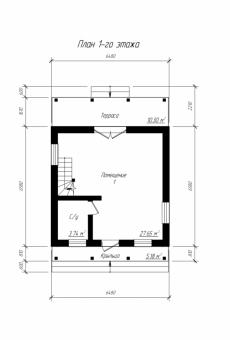
План первого этажа


Помещение — 27,65 м2
С/у — 3,74 м2
Терраса — 10,30 м2
Крыльцо — 5,18 м2

План мансардного этажа


Помещение — 31,86 м2
Балкон — 10,42 м2
Балкон — 5,24 м2
Проект современного коттеджа с мансардой Проект современного коттеджа с мансардой Проект современного коттеджа с мансардой Проект современного коттеджа с мансардой

Модификации проектов

Внесение изменений и привязка к участку строительства

В любой из проектов от компании VIPplan - Изобильный по вашему желанию могут быть внесены изменения в материалы стен, материалы наружной отделки дома, а также будет произведена адаптация проекта под конкретный регион строительства (с учетом грунтов региона, геологических особенностей вашего участка и местных климатических условий) - БЕСПЛАТНО !!! (кроме проектов со скидкой и проектов наших партнеров).

Любой из проектов, размещенных на сайте izobilnyiy.vipplan.ru мы можем выполнить из требуемых вам строительных материалов: ячеистый бетон (газобетон, пеноблок), керамоблок, кирпич, шлакоблок, бетонный блок, дерево (брус, клееный брус), каркасная технология (деревянный каркас, металлокаркас (ЛСТК)).

Фасад дома и его наружную отделку так же возможно выполнить с применением различных облицовочных материалов: структурной штукатурки, (с утеплителем и без), сайдингом (пластиковый или металлосайдинг), фиброплитами, кирпича.

 
6 Избранные
проекты

Доставка проектов по России: Москва (Московская область), Санкт-Петербург (Ленинградская область), Краснодар, Ростов-на-Дону, Ставрополь, Сочи, Волгоград, Новосибирск, Белгород, Брянск, Воронеж, Саратов, Хабаровск, Астрахань, Нальчик, Владикавказ, Екатеринбург, Тюмень, Самара, Нижний Новгород, Казань, Пермь, Уфа, Челябинск, Красноярск, Ханты-Мансийск, Иркутск, Курган, Оренбург, Омск, Томск, Барнаул, Новокузнецк, Кемерово, Абакан, Чита, Якутск, Южно-Сахалинск, Петропавловск-Камчатский и страны ближнего зарубежья: Белоруссия, Украина, Казахстан