Добро пожаловать на http://vipplan.ru

Випплан Изобильный - это тысячи проектов домов в нашем каталоге!

Вы всегда сможете найти для себя проект дома вашей мечты! Даже если этого не случилось, мы готовы в любую минуту предложить проект индивидуального дома.

Забыли пароль?
Вы еще не регистрировались?

Перейдите по ссылке ниже на страницу регистрации.

Регистрация...

Внимание!!!

В проектную документацию могут быть внесены изменения любой сложности, в соответствии в Вашими пожеланиями!

Полезные статьи

Применение ленточных фундаментов

Большинство людей никогда не сталкивались с выбором фундамента, а, столкнувшись, не могут определиться с выбором. Ведущие специалисты в области строительства утверждают, что лучшим типом фундамент - ленточный фундамент. Как показывает статистика, ленточный фундамент очень популярен среди жителей нашей страны. ...

Закладка фундамента дома

Закладка фундамента является одним из первых и самых главных этапов строительства любого дома. Все здание опирается именно на эту часть конструкции. Поэтому главная функция фундамента заключается в том, чтобы нести на себе весь вес несущих стен и кровли, а значит предотвращать появление перекоса стен, проседание сооружения, что неизбежно приводит к образованию трещин в стенах здания и в фундаменте....

Проекты домов и коттеджей > Каталог проектов домов > Проект дома из бруса с мансардой Vg1016

Проект дома из бруса с мансардой Vg1016

Проект дома из бруса с мансардой
Зарегистрируйтесь

Проект № Vg1016


Техническое описание
Общая площадь: 108.82 м2
Жилая площадь: 70.89 м2
Высота здания: 8.08 м
Размеры дома: 7.9м×10.8м
Кол-во комнат: 4
Цокольный этаж: нет
Гараж: нет
Мансарда: есть

Kонструкция
Фундамент: Монолитная ж/б плита
Перекрытия: По деревянным балкам
Материал стен: Дерево

Архитектурный раздел
Конструктивный раздел
Инженерный раздел
Смета на строительство
АР+КР - 48 000 (Со скидкой 20%)
АР+КР+ИР - 86 150 (Со скидкой 50%)
Проект индивидуального одноэтажного жилого дома с мансардой с размерами 7.90 x 10.80 м. Отделка цоколя – клинкерная плитка. Фундамент – монолитная ж/б плита. Наружные стены запроектированы из профилированного бруса. Внутренние стены – из профилированного бруса. Перегородки – из профилированного бруса. Пол 1-го этажа – пол по грунту. Перекрытие межэтажное – по деревянным балкам с использованием теплошумоизоляционных материалов. Крыша - двускатная. Материал кровли – металлочерепица. Окна - металлопластиковые, выполненные по индивидуальному заказу. Лестница — деревянная, выполненная по индивидуальному заказу.
Генплан застройки участка / Паспорт проекта 7000 руб / 10000 руб
Инженерный раздел (полный) 38150 руб (54500 руб)
Смета на строительство 20438 руб (27250 руб)
Теплотехнический расчет материалов стен Бесплатно
Стоимость проекта со незначительнми изменениями 57250 руб
Стоимость проекта со средними изменениями* 65500 руб
Стоимость проекта со значительными изменениями** 67600 руб

План первого этажа


Тамбур — 1,6 м2
Холл — 3,36 м2
Гостиная — 22,62 м2
Спальня — 9,92 м2
Кухня — 4,75 м2
С/у — 2,7 м2
Кухня — 5,75 м2

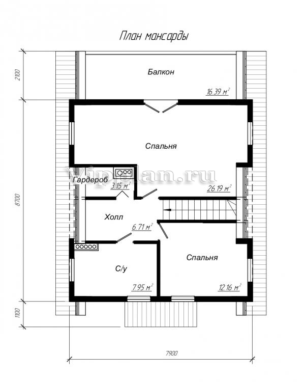
План мансардного этажа


Холл — 6,71 м2
Спальня — 26,19 м2
Гардероб — 3,15 м2
Спальня — 12,16 м2
С/у — 7,95 м2
Проект дома из бруса с мансардой Проект дома из бруса с мансардой Проект дома из бруса с мансардой Проект дома из бруса с мансардой

Модификации проектов

Внесение изменений и привязка к участку строительства

В любой из проектов от компании VIPplan - Изобильный по вашему желанию могут быть внесены изменения в материалы стен, материалы наружной отделки дома, а также будет произведена адаптация проекта под конкретный регион строительства (с учетом грунтов региона, геологических особенностей вашего участка и местных климатических условий) - БЕСПЛАТНО !!! (кроме проектов со скидкой и проектов наших партнеров).

Любой из проектов, размещенных на сайте izobilnyiy.vipplan.ru мы можем выполнить из требуемых вам строительных материалов: ячеистый бетон (газобетон, пеноблок), керамоблок, кирпич, шлакоблок, бетонный блок, дерево (брус, клееный брус), каркасная технология (деревянный каркас, металлокаркас (ЛСТК)).

Фасад дома и его наружную отделку так же возможно выполнить с применением различных облицовочных материалов: структурной штукатурки, (с утеплителем и без), сайдингом (пластиковый или металлосайдинг), фиброплитами, кирпича.

 
6 Избранные
проекты

Доставка проектов по России: Москва (Московская область), Санкт-Петербург (Ленинградская область), Краснодар, Ростов-на-Дону, Ставрополь, Сочи, Волгоград, Новосибирск, Белгород, Брянск, Воронеж, Саратов, Хабаровск, Астрахань, Нальчик, Владикавказ, Екатеринбург, Тюмень, Самара, Нижний Новгород, Казань, Пермь, Уфа, Челябинск, Красноярск, Ханты-Мансийск, Иркутск, Курган, Оренбург, Омск, Томск, Барнаул, Новокузнецк, Кемерово, Абакан, Чита, Якутск, Южно-Сахалинск, Петропавловск-Камчатский и страны ближнего зарубежья: Белоруссия, Украина, Казахстан