Добро пожаловать на http://vipplan.ru

Випплан Изобильный - это тысячи проектов домов в нашем каталоге!

Вы всегда сможете найти для себя проект дома вашей мечты! Даже если этого не случилось, мы готовы в любую минуту предложить проект индивидуального дома.

Забыли пароль?
Вы еще не регистрировались?

Перейдите по ссылке ниже на страницу регистрации.

Регистрация...

Внимание!!!

В проектную документацию могут быть внесены изменения любой сложности, в соответствии в Вашими пожеланиями!

Полезные статьи

Дом это прекрасное вложение

Современный рынок недвижимости диктует свои правила. Цены на землю и недвижимость в Изобильном постоянно растут и вынуждают по-другому смотреть на покупку собственного дома. Не только со стороны получения удобного, благоустроенного жилья, но и со стороны капитализации и инвестировании своих средств...

Системы утепления фасада

Основные тепловые потери происходят через стены, фундамент и крышу. Уменьшить их можно с помощью утеплителя, создав внутри дома оптимальный для жизни климат, с достаточно ровным температурным режимом и низкой влажностью....

Проекты домов и коттеджей > Каталог проектов домов > Дом с мансардой, гаражом, террасой и балконом Vg973

Дом с мансардой, гаражом, террасой и балконом Vg973

Дом с мансардой, гаражом, террасой и балконом
Зарегистрируйтесь

Проект № Vg973


Техническое описание
Общая площадь: 173.68 м2
Жилая площадь: 92.28 м2
Высота здания: 8.9 м
Размеры дома: 9.44м×12.24м
Кол-во комнат: 5
Цокольный этаж: нет
Гараж: нет
Мансарда: есть

Kонструкция
Фундамент: ленточный, монолитный
Перекрытия: сборные ж/б плиты
Материал стен: Газобетон

Архитектурный раздел
Конструктивный раздел
АР+КР - 56 000 (Со скидкой 20%)
Проект индивидуального одноэтажного одноквартирного жилого дома с мансардой с размерами 9,44x12,24 м. Наружная отделка здания – облицовочный кирпич 2-х цветов. Цоколь - камень. Фундамент – ленточный монолитный. Наружные стены запроектированы из: газобетонных блоков, утеплителя и облицовочного кирпича. Внутренние стены и перегородки - из газобетонных блоков. Перемычки - монолитные и сварные из профиля проката. Перекрытия межэтажные – сборные ж/б плиты. Пол 1 этажа - пол по грунту. Крыша - двускатная. Материал кровли - металлочерепица. Окна - металлопластиковые, выполненные по индивидуальному заказу. Лестница выполняется по индивидуальному заказу.
Генплан застройки участка / Паспорт проекта 7000 руб / 10000 руб
Инженерный раздел (полный) 87000 руб
Смета на строительство 43500 руб
Теплотехнический расчет материалов стен Бесплатно
Стоимость проекта со незначительнми изменениями 65650 руб
Стоимость проекта со средними изменениями* 78700 руб
Стоимость проекта со значительными изменениями** 82200 руб

План первого этажа


Гостиная - 23,60 кв м
Холл - 10,97 кв м
Бойлерная - 4,99 кв м
Кабинет - 10,05 кв м
Тамбур - 4,40 кв м
С/у - 2,81 кв м
Кухня - 7,91 кв м
Кладовая - 2,42 кв м
Гараж - 19,74 кв м

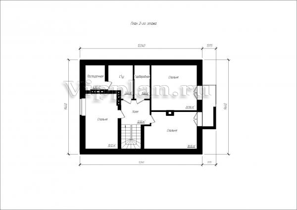
План мансардного этажа


Постирочная - 4,99 кв м
Холл - 12,10 кв м
Спальня - 20,96 кв м
Спальня - 18,55 кв м
Спальня - 18,12 кв м
С/у - 7,43 кв м
Гардеробная - 5,44 кв м
Дом с мансардой, гаражом, террасой и балконом Дом с мансардой, гаражом, террасой и балконом Дом с мансардой, гаражом, террасой и балконом Дом с мансардой, гаражом, террасой и балконом

Модификации проектов

Внесение изменений и привязка к участку строительства

В любой из проектов от компании VIPplan - Изобильный по вашему желанию могут быть внесены изменения в материалы стен, материалы наружной отделки дома, а также будет произведена адаптация проекта под конкретный регион строительства (с учетом грунтов региона, геологических особенностей вашего участка и местных климатических условий) - БЕСПЛАТНО !!! (кроме проектов со скидкой и проектов наших партнеров).

Любой из проектов, размещенных на сайте izobilnyiy.vipplan.ru мы можем выполнить из требуемых вам строительных материалов: ячеистый бетон (газобетон, пеноблок), керамоблок, кирпич, шлакоблок, бетонный блок, дерево (брус, клееный брус), каркасная технология (деревянный каркас, металлокаркас (ЛСТК)).

Фасад дома и его наружную отделку так же возможно выполнить с применением различных облицовочных материалов: структурной штукатурки, (с утеплителем и без), сайдингом (пластиковый или металлосайдинг), фиброплитами, кирпича.

 
6 Избранные
проекты

Доставка проектов по России: Москва (Московская область), Санкт-Петербург (Ленинградская область), Краснодар, Ростов-на-Дону, Ставрополь, Сочи, Волгоград, Новосибирск, Белгород, Брянск, Воронеж, Саратов, Хабаровск, Астрахань, Нальчик, Владикавказ, Екатеринбург, Тюмень, Самара, Нижний Новгород, Казань, Пермь, Уфа, Челябинск, Красноярск, Ханты-Мансийск, Иркутск, Курган, Оренбург, Омск, Томск, Барнаул, Новокузнецк, Кемерово, Абакан, Чита, Якутск, Южно-Сахалинск, Петропавловск-Камчатский и страны ближнего зарубежья: Белоруссия, Украина, Казахстан