Добро пожаловать на http://vipplan.ru

Випплан Изобильный - это тысячи проектов домов в нашем каталоге!

Вы всегда сможете найти для себя проект дома вашей мечты! Даже если этого не случилось, мы готовы в любую минуту предложить проект индивидуального дома.

Забыли пароль?
Вы еще не регистрировались?

Перейдите по ссылке ниже на страницу регистрации.

Регистрация...

Внимание!!!

В проектную документацию могут быть внесены изменения любой сложности, в соответствии в Вашими пожеланиями!

Полезные статьи

Технология строительства быстровозводимых домов

Погода бывает разной и показывает свой характер и он не редко оказывается малоприятным. Прекрасная солнечная погода сменяется то жарой, то резким похолоданием, то проливными дождями. Когда наступает зима, вопрос утепления деревянного дома становится все актуальнее и актуальнее. Если вы планируете построить дом в конце осени, то вам нужно знать,что микроклимат который будет создаваться внутри, повлияет на сопротивляемость организма, к простуде и прочим вирусным заболеваниям. Да и в теплом уютном доме приятно проводить время, когда за окном вьюга и стужа....

Выбор проекта дома в Изобильном

Выбор проекта дома может завести семью в тупик. Прийти к одному конкретному мнению всем членам семьи очень сложно. Кому-то по душе, чтобы дом был большой и одноэтажный, с красивой террасой или верандой, кому-то хочется жить в двухэтажном доме с балконом. Детям, в основном, нравятся дома с мансардой....

Проекты домов и коттеджей > Каталог проектов домов > Одноэтажный дом с гаражом на 2 машины и террасой Vg967

Одноэтажный дом с гаражом на 2 машины и террасой Vg967

Одноэтажный дом с гаражом на 2 машины и террасой
Зарегистрируйтесь

Проект № Vg967


Техническое описание
Общая площадь: 206.8 м2
Жилая площадь: 87.19 м2
Высота здания: 7.44 м
Размеры дома: 15.64м×18.94м
Кол-во комнат: 4
Цокольный этаж: нет
Гараж: нет
Мансарда: нет

Kонструкция
Фундамент: буронабивной (свайно-ростверковый)
Перекрытия: деревянные балки
Материал стен: Газобетон

Архитектурный раздел
Конструктивный раздел
Инженерный раздел
Смета на строительство
АР+КР - 64 000 (Со скидкой 20%)
АР+КР+ИР - 136 450 (Со скидкой 50%)
Проект индивидуального одноэтажного одноквартирного жилого дома с размерами 15,64х18,94 м. Наружная отделка здания – декоративная штукатурка и клинкерная плитка. Цоколь - клинкерная плитка. Фундамент – буронабивной (свайно-ростверковый). Наружные стены запроектированы из: газосиликат, утеплитель и декоративной штукатурки. Внутренние стены и перегородки - газобетонных блоков. Перемычки - монолитные и сварные из профиля проката. Пол 1 этажа - пол по грунту. Крыша - многоскатная. Материал кровли – металлочерепица. Окна - металлопластиковые, выполненные по индивидуальному заказу. Лестница выполняется по индивидуальному заказу.
Генплан застройки участка / Паспорт проекта 7000 руб / 10000 руб
Инженерный раздел (полный) 72450 руб (103500 руб)
Смета на строительство 38813 руб (51750 руб)
Теплотехнический расчет материалов стен Бесплатно
Стоимость проекта со незначительнми изменениями 74800 руб
Стоимость проекта со средними изменениями* 90400 руб
Стоимость проекта со значительными изменениями** 94500 руб

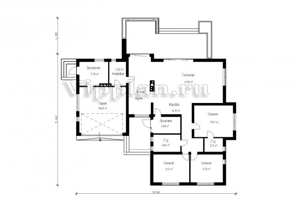
План первого этажа


Гостиная - 41,82 кв м
Коридор - 14,10 кв м
Кухня - 18,46 кв м
Кладовая - 5,82 кв м
Бойлерная - 9,86 кв м
Гараж - 36,65 кв м
Прихожая - 6,58 кв м
С/у - 6,82 кв м
Спальня - 14,54 кв м
Спальня - 13,16 кв м
С/у - 3,73 кв м
Спальня - 17,67 кв м
Одноэтажный дом с гаражом на 2 машины и террасой Одноэтажный дом с гаражом на 2 машины и террасой Одноэтажный дом с гаражом на 2 машины и террасой Одноэтажный дом с гаражом на 2 машины и террасой

Модификации проектов

Внесение изменений и привязка к участку строительства

В любой из проектов от компании VIPplan - Изобильный по вашему желанию могут быть внесены изменения в материалы стен, материалы наружной отделки дома, а также будет произведена адаптация проекта под конкретный регион строительства (с учетом грунтов региона, геологических особенностей вашего участка и местных климатических условий) - БЕСПЛАТНО !!! (кроме проектов со скидкой и проектов наших партнеров).

Любой из проектов, размещенных на сайте izobilnyiy.vipplan.ru мы можем выполнить из требуемых вам строительных материалов: ячеистый бетон (газобетон, пеноблок), керамоблок, кирпич, шлакоблок, бетонный блок, дерево (брус, клееный брус), каркасная технология (деревянный каркас, металлокаркас (ЛСТК)).

Фасад дома и его наружную отделку так же возможно выполнить с применением различных облицовочных материалов: структурной штукатурки, (с утеплителем и без), сайдингом (пластиковый или металлосайдинг), фиброплитами, кирпича.

 
6 Избранные
проекты

Доставка проектов по России: Москва (Московская область), Санкт-Петербург (Ленинградская область), Краснодар, Ростов-на-Дону, Ставрополь, Сочи, Волгоград, Новосибирск, Белгород, Брянск, Воронеж, Саратов, Хабаровск, Астрахань, Нальчик, Владикавказ, Екатеринбург, Тюмень, Самара, Нижний Новгород, Казань, Пермь, Уфа, Челябинск, Красноярск, Ханты-Мансийск, Иркутск, Курган, Оренбург, Омск, Томск, Барнаул, Новокузнецк, Кемерово, Абакан, Чита, Якутск, Южно-Сахалинск, Петропавловск-Камчатский и страны ближнего зарубежья: Белоруссия, Украина, Казахстан