Добро пожаловать на http://vipplan.ru

Випплан Изобильный - это тысячи проектов домов в нашем каталоге!

Вы всегда сможете найти для себя проект дома вашей мечты! Даже если этого не случилось, мы готовы в любую минуту предложить проект индивидуального дома.

Забыли пароль?
Вы еще не регистрировались?

Перейдите по ссылке ниже на страницу регистрации.

Регистрация...

Внимание!!!

В проектную документацию могут быть внесены изменения любой сложности, в соответствии в Вашими пожеланиями!

Полезные статьи

Плиты перекрытий

Железобетонные плиты очень широко используются в строительстве. При помощи них возводят как промышленные объекты так жилые. Железобетонные плиты перекрытия являются главной частью любого строительного объекта вне зависимости от этажности....

Печи и камины в частном доме

Спросите любого человека, и вы поймете, что каждый человек мечтает иметь свой собственный дом, который он сможет обустроить так, как ему хочется. Этот дом будет полон уюта, тепла, света и комфорта, а главное, что, придя с работы, человек сможет запросто отдохнуть у своего очага.  Нет никакой альтернативы перед выбором печи или камина. Эти две вещи не сможет  заменить ни искусственный свет, ни солнечное освещение. Камин и печь, с древности, считаются предметом роскоши. Ни один большой дом не может обойтись без них, поскольку если удастся сесть и посидеть перед этим местом, то долго нельзя будет...

Проекты домов и коттеджей > Каталог проектов домов > Проект уникального одноэтажного дома с мансардой Vg2417

Проект уникального одноэтажного дома с мансардой Vg2417

Проект уникального одноэтажного дома с мансардой
Зарегистрируйтесь

Проект № Vg2417


Техническое описание
Общая площадь: 286.18 м2
Жилая площадь: 124.4 м2
Высота здания: 9.3 м
Размеры дома: 15.5м×16м
Кол-во комнат: 8
Цокольный этаж: нет
Гараж: нет
Мансарда: есть

Kонструкция
Фундамент: монолитная ж/б плита
Перекрытия: монолитная ж/б плита
Материал стен: material_mon

Архитектурный раздел
Конструктивный раздел
Инженерный раздел
АР+КР - 72 000 (Со скидкой 20%)
АР+КР+ИР - 172 100 (Со скидкой 50%)
Модель проекта индивидуального одноэтажного жилого дома с мансардой с размерами здания 15,5х16,0 м. Наружная отделка здания – сайдинг. Фундамент – монолитная ж/б плита. Наружные стены – ж/б каркас с заполнением газобетонными блоками, минеральная вата, сайдинг. Внутренние стены и перегородки - газобетонные блоки. Пол 1 этажа - пол по монолитной ж/б плите. Перекрытие мансарды - монолитное ж/б. Крыша двускатная. Кровля – металлочерепица. Окна — металлопластиковые.
Генплан застройки участка / Паспорт проекта 7000 руб / 10000 руб
Инженерный раздел (полный) 100100 руб (143000 руб)
Смета на строительство 71500 руб
Теплотехнический расчет материалов стен Бесплатно
Стоимость проекта со незначительнми изменениями 82850 руб
Стоимость проекта со средними изменениями* 104300 руб
Стоимость проекта со значительными изменениями** 110000 руб

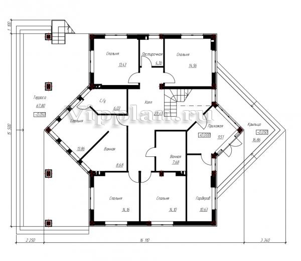
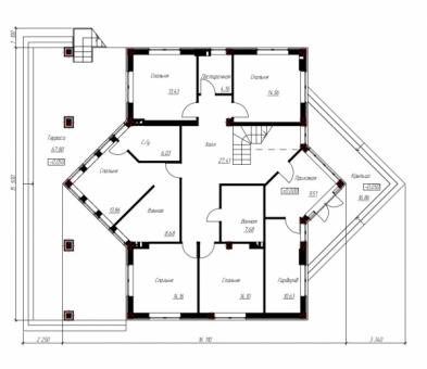
План первого этажа


Прихожая — 9,51 кв м
Холл — 27,41 кв м
Ванная — 7,68 кв м
Гардероб — 10,63 кв м
Спальня — 14,10 кв м
Спальня — 14,16 кв м
Ванная — 8,68 кв м
Спальня — 13,86 кв м
С/у — 6,03 кв м
Спальня — 13,43 кв м
Постирочная — 4,16 кв м
Спальня — 14,56 кв м

Проект уникального одноэтажного дома с мансардой

Проект уникального одноэтажного дома с мансардой

План второго этажа


Столовая — 19,89 кв м
Хамам — 5,23 кв м
Душевая — 2,40 кв м
Тренажерный зал — 15,87 кв м
Мастерская — 15,74 кв м
Бильярдная — 24,41 кв м
Каминная — 12,60 кв м
Гостиная — 17,28 кв м
Балкон — 3,01 кв м
Кухня — 18,78 кв м
С/у — 2,53 кв м
Кладовая — 4,90 кв м
Балкон — 2,33 кв м
Проект уникального одноэтажного дома с мансардой Проект уникального одноэтажного дома с мансардой Проект уникального одноэтажного дома с мансардой Проект уникального одноэтажного дома с мансардой

Модификации проектов

Внесение изменений и привязка к участку строительства

В любой из проектов от компании VIPplan - Изобильный по вашему желанию могут быть внесены изменения в материалы стен, материалы наружной отделки дома, а также будет произведена адаптация проекта под конкретный регион строительства (с учетом грунтов региона, геологических особенностей вашего участка и местных климатических условий) - БЕСПЛАТНО !!! (кроме проектов со скидкой и проектов наших партнеров).

Любой из проектов, размещенных на сайте izobilnyiy.vipplan.ru мы можем выполнить из требуемых вам строительных материалов: ячеистый бетон (газобетон, пеноблок), керамоблок, кирпич, шлакоблок, бетонный блок, дерево (брус, клееный брус), каркасная технология (деревянный каркас, металлокаркас (ЛСТК)).

Фасад дома и его наружную отделку так же возможно выполнить с применением различных облицовочных материалов: структурной штукатурки, (с утеплителем и без), сайдингом (пластиковый или металлосайдинг), фиброплитами, кирпича.

 
6 Избранные
проекты

Доставка проектов по России: Москва (Московская область), Санкт-Петербург (Ленинградская область), Краснодар, Ростов-на-Дону, Ставрополь, Сочи, Волгоград, Новосибирск, Белгород, Брянск, Воронеж, Саратов, Хабаровск, Астрахань, Нальчик, Владикавказ, Екатеринбург, Тюмень, Самара, Нижний Новгород, Казань, Пермь, Уфа, Челябинск, Красноярск, Ханты-Мансийск, Иркутск, Курган, Оренбург, Омск, Томск, Барнаул, Новокузнецк, Кемерово, Абакан, Чита, Якутск, Южно-Сахалинск, Петропавловск-Камчатский и страны ближнего зарубежья: Белоруссия, Украина, Казахстан