Добро пожаловать на http://vipplan.ru

Випплан Изобильный - это тысячи проектов домов в нашем каталоге!

Вы всегда сможете найти для себя проект дома вашей мечты! Даже если этого не случилось, мы готовы в любую минуту предложить проект индивидуального дома.

Забыли пароль?
Вы еще не регистрировались?

Перейдите по ссылке ниже на страницу регистрации.

Регистрация...

Внимание!!!

В проектную документацию могут быть внесены изменения любой сложности, в соответствии в Вашими пожеланиями!

Полезные статьи

Перекрытия в доме

Перекрытия – одно из важнейших составляющих строящегося дома. Это горизонтальная внутренняя защитная конструкция, разделяющая по уровню смежные помещения дома. По назначению выделяют подвальные, межэтажные и чердачные перекрытия. При проектировании домов и зданий различного назначения, требования к межэтажным перекрытиям определяются их местоположением и функциями разделяемых помещений: надподвальные, межэтажные, чердачные и т.д....

Выбор участка для строительства дома

Если вы решили приобрести участок земли и построить на нем дом или дачу. То данная статья специально для вас. А так же мы поможем вам в выборе проекта для выбранного вами участка....

Проекты домов и коттеджей > Каталог проектов домов > Проект небольшого одноэтажного жилого дома с мансардой Vg2411

Проект небольшого одноэтажного жилого дома с мансардой Vg2411

Проект небольшого одноэтажного жилого дома с мансардой
Зарегистрируйтесь

Проект № Vg2411


Техническое описание
Общая площадь: 171.25 м2
Жилая площадь: 77.63 м2
Высота здания: 8.58 м
Размеры дома: 12.54м×8.94м
Кол-во комнат: 4
Цокольный этаж: нет
Гараж: нет
Мансарда: есть

Kонструкция
Фундамент: ленточный монолитный ж/б под несущими стенами
Перекрытия: сборно-монолитное по технологии несъемной опалубки
Материал стен: Опалубка

Архитектурный раздел
Конструктивный раздел

Смета на строительство
АР+КР - 56 000 (Со скидкой 20%)
Модель проекта индивидуального одноэтажного жилого дома с мансардой с размерами здания 12,54 x 8,94 м. Наружная отделка здания – штукатурка Фундамент – ленточный монолитный ж/б под несущими стенами. Наружные стены – железобетонные по технологии несъемной опалубки. Внутренние стены - железобетонные по технологии несъемной опалубки. Перегородки - газобетон. Пол подвала, межэтажное перекрытие - сборно-монолитные по технологии несъемной опалубки. Крыша многоскатная. Кровля – металлочерепица. Окна — металлопластиковые.
Генплан застройки участка / Паспорт проекта 7000 руб / 10000 руб
Инженерный раздел (полный) 85500 руб
Смета на строительство 32063 руб (42750 руб)
Теплотехнический расчет материалов стен Бесплатно
Стоимость проекта со незначительнми изменениями 65700 руб
Стоимость проекта со средними изменениями* 78600 руб
Стоимость проекта со значительными изменениями** 82000 руб

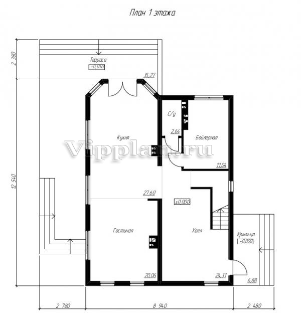
План первого этажа


Холл — 24,31 м2
Гостиная — 20,06 м2
Кухня — 27,6 м2
С/у — 2,64 м2
Бойлерная — 11,04 м2

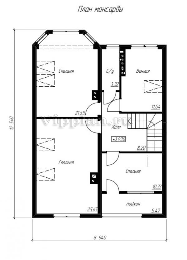
План мансардного этажа


Холл — 8,2 м2
Спальня — 10,33 м2
Лоджия — 5,47 м2
Спальня — 25,65 м2
Спальня — 21,59 м2
С/у — 3,32 м2
Ванная — 11,04 м2
Проект небольшого одноэтажного жилого дома с мансардой Проект небольшого одноэтажного жилого дома с мансардой Проект небольшого одноэтажного жилого дома с мансардой Проект небольшого одноэтажного жилого дома с мансардой

Модификации проектов

Внесение изменений и привязка к участку строительства

В любой из проектов от компании VIPplan - Изобильный по вашему желанию могут быть внесены изменения в материалы стен, материалы наружной отделки дома, а также будет произведена адаптация проекта под конкретный регион строительства (с учетом грунтов региона, геологических особенностей вашего участка и местных климатических условий) - БЕСПЛАТНО !!! (кроме проектов со скидкой и проектов наших партнеров).

Любой из проектов, размещенных на сайте izobilnyiy.vipplan.ru мы можем выполнить из требуемых вам строительных материалов: ячеистый бетон (газобетон, пеноблок), керамоблок, кирпич, шлакоблок, бетонный блок, дерево (брус, клееный брус), каркасная технология (деревянный каркас, металлокаркас (ЛСТК)).

Фасад дома и его наружную отделку так же возможно выполнить с применением различных облицовочных материалов: структурной штукатурки, (с утеплителем и без), сайдингом (пластиковый или металлосайдинг), фиброплитами, кирпича.

 
6 Избранные
проекты

Доставка проектов по России: Москва (Московская область), Санкт-Петербург (Ленинградская область), Краснодар, Ростов-на-Дону, Ставрополь, Сочи, Волгоград, Новосибирск, Белгород, Брянск, Воронеж, Саратов, Хабаровск, Астрахань, Нальчик, Владикавказ, Екатеринбург, Тюмень, Самара, Нижний Новгород, Казань, Пермь, Уфа, Челябинск, Красноярск, Ханты-Мансийск, Иркутск, Курган, Оренбург, Омск, Томск, Барнаул, Новокузнецк, Кемерово, Абакан, Чита, Якутск, Южно-Сахалинск, Петропавловск-Камчатский и страны ближнего зарубежья: Белоруссия, Украина, Казахстан