Добро пожаловать на http://vipplan.ru

Випплан Изобильный - это тысячи проектов домов в нашем каталоге!

Вы всегда сможете найти для себя проект дома вашей мечты! Даже если этого не случилось, мы готовы в любую минуту предложить проект индивидуального дома.

Забыли пароль?
Вы еще не регистрировались?

Перейдите по ссылке ниже на страницу регистрации.

Регистрация...

Внимание!!!

В проектную документацию могут быть внесены изменения любой сложности, в соответствии в Вашими пожеланиями!

Полезные статьи

Купить готовый проект дома или заказать индивидуальный?

Перед началом строительства дома возникает необходимость в проекте дома и тут встает вопрос: Купить готовый проект дома или заказать индивидуальный на заказ? Каждый из вариантов по своему хорош и имеет как свои плюсы так и минусы...

Окна в доме

От хорошего стеклопакета зависит почти 50% теплостойкости всего дома. Ведь на проемы в окнах приходится до 45% тепловых потерь дома. Поэтому хорошие стеклопакеты не пропускают тепло из комнаты и должны противостоять проникновению ветра, влаги и холода с наружной стороны....

Проекты домов и коттеджей > Каталог проектов домов > Проект одноэтажного дома с чердаком Vg2349

Проект одноэтажного дома с чердаком Vg2349

Проект одноэтажного дома с чердаком
Зарегистрируйтесь

Проект № Vg2349


Техническое описание
Общая площадь: 117.44 м2
Жилая площадь: 61.73 м2
Высота здания: 7.35 м
Размеры дома: 10.54м×15.04м
Кол-во комнат: 4
Цокольный этаж: нет
Гараж: есть
Мансарда: есть

Kонструкция
Фундамент: свайно-ростверковый (буронабивной)
Перекрытия: деревянные балки
Материал стен: Газобетон

Архитектурный раздел
Конструктивный раздел
Инженерный раздел
АР+КР - 48 000 (Со скидкой 20%)
АР+КР+ИР - 88 950 (Со скидкой 50%)
Модель проекта индивидуального одноэтажного жилого дома с чердаком с размерами здания 10,54 x 15,04 м. Наружная отделка здания – фиброцементные панели. Фундамент – свайно-ростверковый (буронабивной). Наружные стены – газобетонный блок. Внутренние стены - газобетонный блок. Перегородки - забутовочный кирпич. Пол подвала - пол по грунту. Чердачное перекрытие - деревянные балки. Крыша двускатная. Кровля – битумная черепица. Окна — металлопластиковые.
Генплан застройки участка / Паспорт проекта 7000 руб / 10000 руб
Инженерный раздел (полный) 40950 руб (58500 руб)
Смета на строительство 29250 руб
Теплотехнический расчет материалов стен Бесплатно
Стоимость проекта со незначительнми изменениями 57050 руб
Стоимость проекта со средними изменениями* 65900 руб
Стоимость проекта со значительными изменениями** 68200 руб

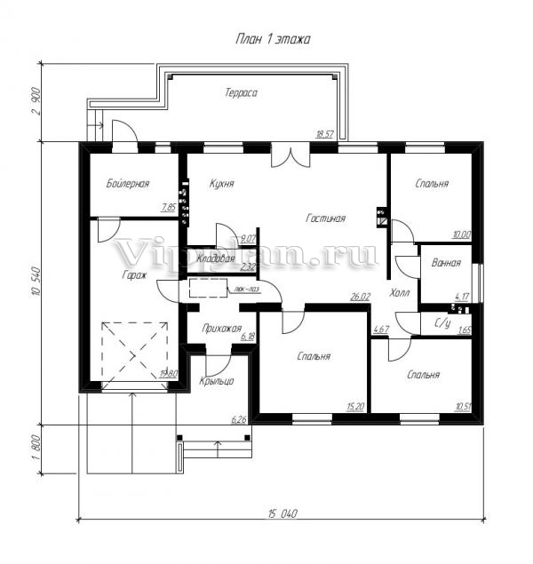
План первого этажа


Прихожая — 6,18 м2
Гостиная — 26,02 м2
Кухня — 9,07 м2
Кладовая — 2,32 м2
Спальня — 10,0 м2
Спальня — 10,51 м2
Спальня — 15,20 м2
Ванная — 4,17 м2
С/у — 1,65 м2
Бойлерная — 7,85 м2
Гараж — 19,8 м2

План мансардного этажа


Помещение — 66,44 м2
Проект одноэтажного дома с чердаком Проект одноэтажного дома с чердаком Проект одноэтажного дома с чердаком Проект одноэтажного дома с чердаком

Модификации проектов

Внесение изменений и привязка к участку строительства

В любой из проектов от компании VIPplan - Изобильный по вашему желанию могут быть внесены изменения в материалы стен, материалы наружной отделки дома, а также будет произведена адаптация проекта под конкретный регион строительства (с учетом грунтов региона, геологических особенностей вашего участка и местных климатических условий) - БЕСПЛАТНО !!! (кроме проектов со скидкой и проектов наших партнеров).

Любой из проектов, размещенных на сайте izobilnyiy.vipplan.ru мы можем выполнить из требуемых вам строительных материалов: ячеистый бетон (газобетон, пеноблок), керамоблок, кирпич, шлакоблок, бетонный блок, дерево (брус, клееный брус), каркасная технология (деревянный каркас, металлокаркас (ЛСТК)).

Фасад дома и его наружную отделку так же возможно выполнить с применением различных облицовочных материалов: структурной штукатурки, (с утеплителем и без), сайдингом (пластиковый или металлосайдинг), фиброплитами, кирпича.

 
6 Избранные
проекты

Доставка проектов по России: Москва (Московская область), Санкт-Петербург (Ленинградская область), Краснодар, Ростов-на-Дону, Ставрополь, Сочи, Волгоград, Новосибирск, Белгород, Брянск, Воронеж, Саратов, Хабаровск, Астрахань, Нальчик, Владикавказ, Екатеринбург, Тюмень, Самара, Нижний Новгород, Казань, Пермь, Уфа, Челябинск, Красноярск, Ханты-Мансийск, Иркутск, Курган, Оренбург, Омск, Томск, Барнаул, Новокузнецк, Кемерово, Абакан, Чита, Якутск, Южно-Сахалинск, Петропавловск-Камчатский и страны ближнего зарубежья: Белоруссия, Украина, Казахстан