Добро пожаловать на http://vipplan.ru

Випплан Изобильный - это тысячи проектов домов в нашем каталоге!

Вы всегда сможете найти для себя проект дома вашей мечты! Даже если этого не случилось, мы готовы в любую минуту предложить проект индивидуального дома.

Забыли пароль?
Вы еще не регистрировались?

Перейдите по ссылке ниже на страницу регистрации.

Регистрация...

Внимание!!!

В проектную документацию могут быть внесены изменения любой сложности, в соответствии в Вашими пожеланиями!

Полезные статьи

Типы и разновидности кровли

Кровля состоит из сплошного настила, стяжки и обрешетки, поддерживающих стропила и несколько слоев изоляции, призванных уберечь кровельное пространство от негативного воздействия пара и влаги....

Комбинированные дома

Посмотрите, насколько далеко шагнула архитектура за последние десятилетия. Сколько изменилось в облике современных городов. А задумывались ли наши родители, о том что они увидят необыкновенные небоскребы и элитные многоквартирные дома, чьи фасады напоминают обруганную капиталистическую действительность. У людей появилась возможность построить дом за городом и в тишине на природе, реализовать любые дизайнерские фантазии. Те, кто может позволить себе частный дом, не ограничены финансами. Для многих частный дом – это показатель их материального благополучия, поэтому никто из них не хочет испол...

Проекты домов и коттеджей > Каталог проектов домов > Проект одноэтажного дома с мансардой и цоколем Vg2251

Проект одноэтажного дома с мансардой и цоколем Vg2251

Проект одноэтажного дома с мансардой и цоколем
Зарегистрируйтесь

Проект № Vg2251


Техническое описание
Общая площадь: 272.28 м2
Жилая площадь: 126.02 м2
Высота здания: 10.17 м
Размеры дома: 13.16м×12.16м
Кол-во комнат: 8
Цокольный этаж: есть
Гараж: нет
Мансарда: есть

Kонструкция
Фундамент: Ленточный ж/б
Перекрытия: Сборные плиты
Материал стен: Кирпич

Архитектурный раздел
Конструктивный раздел
Инженерный раздел
АР+КР - 72 000 (Со скидкой 20%)
АР+КР+ИР - 167 200 (Со скидкой 50%)
Проект индивидуального одноэтажного жилого дома с мансардой и подвалом с размерами здания 13,16x12,16 м. Наружная отделка здания – облицовочный кирпич 2х цветов (желтый, коричневый). Обрамление окон и русты на углах - коричневый кирпич. Фундамент – ленточный монолитный ж/б. Наружные стены – кирпич рядовой с утеплением минеральной ватой, технологическим зазором и отделкой фасада облицовочным кирпичом. Внутренние стены - кирпич рядовой. Перегородки - кирпич рядовой. Пол подвала - пол по грунту. Пол 1 этажа - сборные плиты перекрытия. Пол мансарды - сборные плиты перекрытия. Лестница -монолитная, по индивидуальному заказу. Крыша многоскатная. Кровля –битумная черепица. Окна – металлопластиковые.
Генплан застройки участка / Паспорт проекта 7000 руб / 10000 руб
Инженерный раздел (полный) 95200 руб (136000 руб)
Смета на строительство 68000 руб
Теплотехнический расчет материалов стен Бесплатно
Стоимость проекта со незначительнми изменениями 83200 руб
Стоимость проекта со средними изменениями* 103600 руб
Стоимость проекта со значительными изменениями** 109000 руб

План цокольного этажа


Холл — 16,19 кв м
Помещение — 10,06 кв м
Помещение2 — 9,4 кв м
Помещение3 — 11,28 кв м
Постирочная — 11,56 кв м
Бойлерная — 15,43 кв м

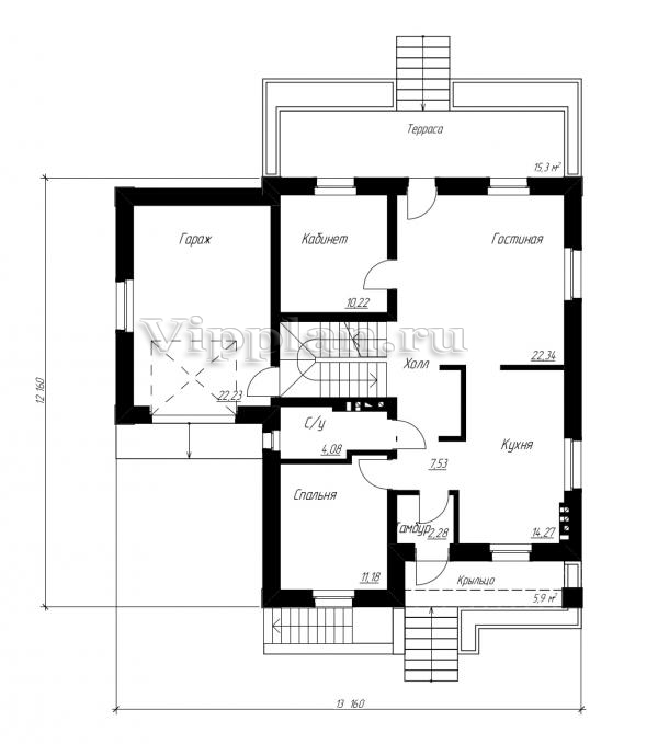
План первого этажа


Тамбур — 2,28 кв м
Холл — 7,53 кв м
Гостиная — 22,34 кв м
Кухня — 14,27 кв м
Спальня — 11,18 кв м
С/у — 4,08 кв м
Кабинет — 10,22 кв м
Гараж — 22,23 кв м

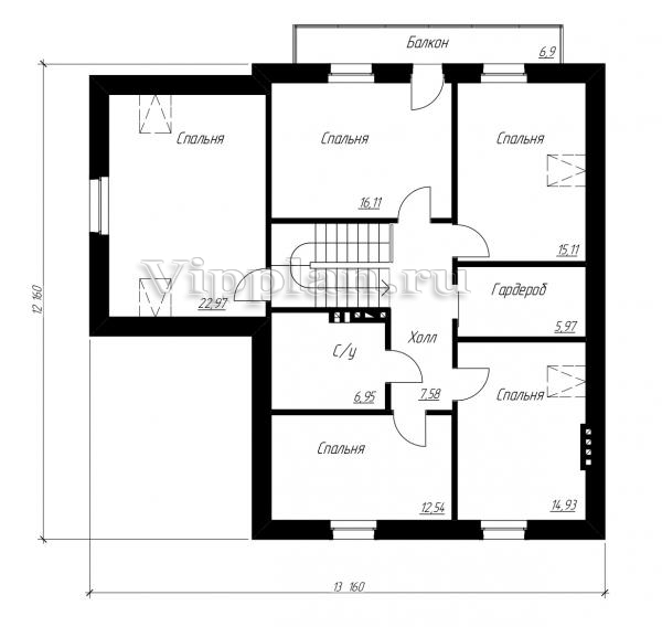
План мансардного этажа


Холл — 7,58 кв м
Спальня — 16,11 кв м
Спальня — 15,11 кв м
Гардероб — 5,97 кв м
Спальня — 14,93 кв м
Спальня — 12,54 кв м
С/у — 6,95 кв м
Спальня — 22,97 кв м
Проект одноэтажного дома с мансардой и цоколем Проект одноэтажного дома с мансардой и цоколем Проект одноэтажного дома с мансардой и цоколем Проект одноэтажного дома с мансардой и цоколем

Модификации проектов

Внесение изменений и привязка к участку строительства

В любой из проектов от компании VIPplan - Изобильный по вашему желанию могут быть внесены изменения в материалы стен, материалы наружной отделки дома, а также будет произведена адаптация проекта под конкретный регион строительства (с учетом грунтов региона, геологических особенностей вашего участка и местных климатических условий) - БЕСПЛАТНО !!! (кроме проектов со скидкой и проектов наших партнеров).

Любой из проектов, размещенных на сайте izobilnyiy.vipplan.ru мы можем выполнить из требуемых вам строительных материалов: ячеистый бетон (газобетон, пеноблок), керамоблок, кирпич, шлакоблок, бетонный блок, дерево (брус, клееный брус), каркасная технология (деревянный каркас, металлокаркас (ЛСТК)).

Фасад дома и его наружную отделку так же возможно выполнить с применением различных облицовочных материалов: структурной штукатурки, (с утеплителем и без), сайдингом (пластиковый или металлосайдинг), фиброплитами, кирпича.

 
6 Избранные
проекты

Доставка проектов по России: Москва (Московская область), Санкт-Петербург (Ленинградская область), Краснодар, Ростов-на-Дону, Ставрополь, Сочи, Волгоград, Новосибирск, Белгород, Брянск, Воронеж, Саратов, Хабаровск, Астрахань, Нальчик, Владикавказ, Екатеринбург, Тюмень, Самара, Нижний Новгород, Казань, Пермь, Уфа, Челябинск, Красноярск, Ханты-Мансийск, Иркутск, Курган, Оренбург, Омск, Томск, Барнаул, Новокузнецк, Кемерово, Абакан, Чита, Якутск, Южно-Сахалинск, Петропавловск-Камчатский и страны ближнего зарубежья: Белоруссия, Украина, Казахстан