Добро пожаловать на http://vipplan.ru

Випплан Изобильный - это тысячи проектов домов в нашем каталоге!

Вы всегда сможете найти для себя проект дома вашей мечты! Даже если этого не случилось, мы готовы в любую минуту предложить проект индивидуального дома.

Забыли пароль?
Вы еще не регистрировались?

Перейдите по ссылке ниже на страницу регистрации.

Регистрация...

Внимание!!!

В проектную документацию могут быть внесены изменения любой сложности, в соответствии в Вашими пожеланиями!

Полезные статьи

Выбор участка для строительства дома

Если вы решили приобрести участок земли и построить на нем дом или дачу. То данная статья специально для вас. А так же мы поможем вам в выборе проекта для выбранного вами участка....

Советы по проектированию дома

Представляем Вашему вниманию несколько советов по проектированию дома. Все что касается выбора участка, размещению дома на участке, подбора проекта на строительство дома, советы по выбору технологии строительства и материалов и т.д....

Проекты домов и коттеджей > Каталог проектов домов > Проект двухэтажного жилого дома Vg161

Проект двухэтажного жилого дома Vg161

Проект двухэтажного жилого дома
Зарегистрируйтесь

Проект № Vg161


Техническое описание
Общая площадь: 71 м2
Высота здания: 7.17 м
Размеры дома: 9м×6м
Кол-во комнат: 3
Цокольный этаж: нет
Гараж: нет
Мансарда: нет

Kонструкция

Архитектурный раздел
АР+КР - 40 000 (Со скидкой 20%)

Проект индивидуального одноэтажного жилого дома с размерами 5,98 x 8,98 м.

Наружная отделка здания – облицовочным кирпичом.

Цоколь – клинкерная плитка.

Фундамент — ленточный монолитный ж/б.

Наружные стены запроектированы из: газобетонного блока

Внутренние стены и перегородки: из забутовочного кирпича

Окна - металлопластиковые, выполненные по индивидуальному заказу.

 

 

 

Технико-экономические показатели

 

Общая площадь помещений — 70,73 м2

Этажность — 2

Высота здания — 7,17 м. От отметки ур. земли до конька.

Генплан застройки участка / Паспорт проекта 7000 руб / 10000 руб
Инженерный раздел (полный) 50000 руб
Смета на строительство 25000 руб
Теплотехнический расчет материалов стен Бесплатно
Стоимость проекта со незначительнми изменениями 48200 руб
Стоимость проекта со средними изменениями* 53600 руб
Стоимость проекта со значительными изменениями** 55000 руб

План первого этажа


Тамбур - 2,85 м2
Холл - 6,65 м2
Гостиная - 16,25 м2
Кухня - 7,86 м2
С/у - 3,50 м2

Проект двухэтажного жилого дома

Проект двухэтажного жилого дома

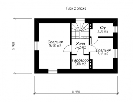
План второго этажа


Холл - 3,42 м2
Гардероб - 3,08 м2
Спальня - 16,90 м2
Спальня - 8,16 м2
С/у - 3,5 м2
Проект двухэтажного жилого дома Проект двухэтажного жилого дома Проект двухэтажного жилого дома Проект двухэтажного жилого дома

Модификации проектов

Внесение изменений и привязка к участку строительства

В любой из проектов от компании VIPplan - Изобильный по вашему желанию могут быть внесены изменения в материалы стен, материалы наружной отделки дома, а также будет произведена адаптация проекта под конкретный регион строительства (с учетом грунтов региона, геологических особенностей вашего участка и местных климатических условий) - БЕСПЛАТНО !!! (кроме проектов со скидкой и проектов наших партнеров).

Любой из проектов, размещенных на сайте izobilnyiy.vipplan.ru мы можем выполнить из требуемых вам строительных материалов: ячеистый бетон (газобетон, пеноблок), керамоблок, кирпич, шлакоблок, бетонный блок, дерево (брус, клееный брус), каркасная технология (деревянный каркас, металлокаркас (ЛСТК)).

Фасад дома и его наружную отделку так же возможно выполнить с применением различных облицовочных материалов: структурной штукатурки, (с утеплителем и без), сайдингом (пластиковый или металлосайдинг), фиброплитами, кирпича.

 
6 Избранные
проекты

Доставка проектов по России: Москва (Московская область), Санкт-Петербург (Ленинградская область), Краснодар, Ростов-на-Дону, Ставрополь, Сочи, Волгоград, Новосибирск, Белгород, Брянск, Воронеж, Саратов, Хабаровск, Астрахань, Нальчик, Владикавказ, Екатеринбург, Тюмень, Самара, Нижний Новгород, Казань, Пермь, Уфа, Челябинск, Красноярск, Ханты-Мансийск, Иркутск, Курган, Оренбург, Омск, Томск, Барнаул, Новокузнецк, Кемерово, Абакан, Чита, Якутск, Южно-Сахалинск, Петропавловск-Камчатский и страны ближнего зарубежья: Белоруссия, Украина, Казахстан