Добро пожаловать на http://vipplan.ru

Випплан Изобильный - это тысячи проектов домов в нашем каталоге!

Вы всегда сможете найти для себя проект дома вашей мечты! Даже если этого не случилось, мы готовы в любую минуту предложить проект индивидуального дома.

Забыли пароль?
Вы еще не регистрировались?

Перейдите по ссылке ниже на страницу регистрации.

Регистрация...

Внимание!!!

В проектную документацию могут быть внесены изменения любой сложности, в соответствии в Вашими пожеланиями!

Полезные статьи

Выбор сайдинга

Прежде чем купить сайдинг, нужно определиться зачем он нужен: для защиты фасада от непогоды, для придания привлекательности внешнему виду дома или для утепления дома.Что же из себя представляет сайдинг? Сайдинг – это материал для облицовки фасада из компаунда. В данной статье мы поможем Вам определиться выбором сайдинга для отделки фасада дома...

Советы по проектированию дома

Представляем Вашему вниманию несколько советов по проектированию дома. Все что касается выбора участка, размещению дома на участке, подбора проекта на строительство дома, советы по выбору технологии строительства и материалов и т.д....

Проекты домов и коттеджей > Каталог проектов домов > Одноэтажный дом с мансардой, террасой, гаражом и балконом Vg1410

Одноэтажный дом с мансардой, террасой, гаражом и балконом Vg1410

Одноэтажный дом с мансардой, террасой, гаражом и балконом
Зарегистрируйтесь

Проект № Vg1410


Техническое описание
Общая площадь: 216.31 м2
Жилая площадь: 118.89 м2
Высота здания: 9.89 м
Размеры дома: 10.08м×15.83м
Кол-во комнат: 6
Цокольный этаж: нет
Гараж: нет
Мансарда: нет

Kонструкция
Фундамент: монолитная плита
Перекрытия: монолитные
Материал стен: material_mon

Архитектурный раздел
Конструктивный раздел
АР+КР - 64 000 (Со скидкой 20%)
Одноэтажный дом с мансардой, террасой, гаражом и балконом с размерами здания 10,08 х 15,83 м. Фундамент - монолитная ж/б плита под всей площадью дома (мелкозаглубленная). Наружные стены здания -рядовой пустотелый кирпич с утеплением минеральной ватой и отделкой штукатуркой. Пол 1 этажа - пол по монолитной плите фундамента. Межэтажное перекрытие - монолитная ж/б плита. Крыша - многоскатная. Кровля - битумная черепица. Окна — металлопластиковые.
Генплан застройки участка / Паспорт проекта 7000 руб / 10000 руб
Инженерный раздел (полный) 108000 руб
Смета на строительство 54000 руб
Теплотехнический расчет материалов стен Бесплатно
Стоимость проекта со незначительнми изменениями 74600 руб
Стоимость проекта со средними изменениями* 90800 руб
Стоимость проекта со значительными изменениями** 95100 руб

План первого этажа


Тамбур - 4,56 м2
Холл 1 - 5,57 м2
Гостиная - 26,86 м2
Кухня - 11,85 м2
Бойлерная - 5,00 м2
С/у - 4,06 м2
Холл 2 - 3,20 м2
Гараж - 31,90 м2
Спальня - 14,92 м2

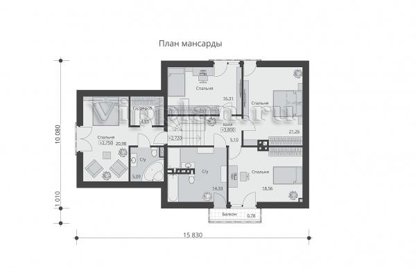
План мансардного этажа


Холл - 5,10 м2
Спальня - 21,26 м2
Спальня - 16,31 м2
Гардероб - 4,51 м2
С/у - 5,09 м2
С/у - 14,33 м2
Балкон - 0,78 м2
Спальня - 18,56 м2
Одноэтажный дом с мансардой, террасой, гаражом и балконом Одноэтажный дом с мансардой, террасой, гаражом и балконом Одноэтажный дом с мансардой, террасой, гаражом и балконом Одноэтажный дом с мансардой, террасой, гаражом и балконом

Модификации проектов

Внесение изменений и привязка к участку строительства

В любой из проектов от компании VIPplan - Изобильный по вашему желанию могут быть внесены изменения в материалы стен, материалы наружной отделки дома, а также будет произведена адаптация проекта под конкретный регион строительства (с учетом грунтов региона, геологических особенностей вашего участка и местных климатических условий) - БЕСПЛАТНО !!! (кроме проектов со скидкой и проектов наших партнеров).

Любой из проектов, размещенных на сайте izobilnyiy.vipplan.ru мы можем выполнить из требуемых вам строительных материалов: ячеистый бетон (газобетон, пеноблок), керамоблок, кирпич, шлакоблок, бетонный блок, дерево (брус, клееный брус), каркасная технология (деревянный каркас, металлокаркас (ЛСТК)).

Фасад дома и его наружную отделку так же возможно выполнить с применением различных облицовочных материалов: структурной штукатурки, (с утеплителем и без), сайдингом (пластиковый или металлосайдинг), фиброплитами, кирпича.

 
6 Избранные
проекты

Доставка проектов по России: Москва (Московская область), Санкт-Петербург (Ленинградская область), Краснодар, Ростов-на-Дону, Ставрополь, Сочи, Волгоград, Новосибирск, Белгород, Брянск, Воронеж, Саратов, Хабаровск, Астрахань, Нальчик, Владикавказ, Екатеринбург, Тюмень, Самара, Нижний Новгород, Казань, Пермь, Уфа, Челябинск, Красноярск, Ханты-Мансийск, Иркутск, Курган, Оренбург, Омск, Томск, Барнаул, Новокузнецк, Кемерово, Абакан, Чита, Якутск, Южно-Сахалинск, Петропавловск-Камчатский и страны ближнего зарубежья: Белоруссия, Украина, Казахстан