Добро пожаловать на http://vipplan.ru

Випплан Изобильный - это тысячи проектов домов в нашем каталоге!

Вы всегда сможете найти для себя проект дома вашей мечты! Даже если этого не случилось, мы готовы в любую минуту предложить проект индивидуального дома.

Забыли пароль?
Вы еще не регистрировались?

Перейдите по ссылке ниже на страницу регистрации.

Регистрация...

Внимание!!!

В проектную документацию могут быть внесены изменения любой сложности, в соответствии в Вашими пожеланиями!

Полезные статьи

Мероприятия по получению разрешения на строительство в Изобильном

Хотите построить дом в Изобильном? Не знаете с чего начать? Для начала, нужно заказать проект, а после получить разрешение на строительство. ...

Фундамент под гараж

Обычно фундаменты под гараж делаются из бетонного раствора и заливаются, как монолит. Гаражные фундаменты так же можно укладывать из бетона с применением бутового камня. Такие фундаменты тоже считаются монолитными. В этом случае происходит экономия бетона....

Проекты домов и коттеджей > Каталог проектов домов > Проект загородного дома с мансардой и гаражом Vg1404

Проект загородного дома с мансардой и гаражом Vg1404

Проект загородного дома с мансардой и гаражом
Зарегистрируйтесь

Проект № Vg1404


Техническое описание
Общая площадь: 266.23 м2
Жилая площадь: 123.95 м2
Высота здания: 9.76 м
Размеры дома: 18.01м×13.18м
Кол-во комнат: 6
Цокольный этаж: нет
Гараж: нет
Мансарда: есть

Kонструкция
Фундамент: Ленточный монолитный
Перекрытия: Монолитная ж/б плита
Материал стен: Газобетон

Архитектурный раздел
Конструктивный раздел
АР+КР - 72 000 (Со скидкой 20%)
Проект индивидуального одноэтажного жилого дома с мансардой и подвалом с размерами здания 18,01 x 13,18 м. Наружная отделка здания – облицовочный кирпич. Фундамент – ленточный монолитный под несущими стенами. Наружные стены – из газобетонного блока с отделкой облицовочным кирпичом. Внутренние стены – из газобетонного блока. Перегородки – из газобетонного блока. Пол первого этажа, межэтажное перекрытие – монолитная плита перекрытия. Крыша многоскатная. Кровля – битумная черепица. Окна — металлопластиковые
Генплан застройки участка / Паспорт проекта 7000 руб / 10000 руб
Инженерный раздел (полный) 133000 руб
Смета на строительство 66500 руб
Теплотехнический расчет материалов стен Бесплатно
Стоимость проекта со незначительнми изменениями 83350 руб
Стоимость проекта со средними изменениями* 103300 руб
Стоимость проекта со значительными изменениями** 108600 руб

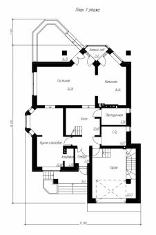
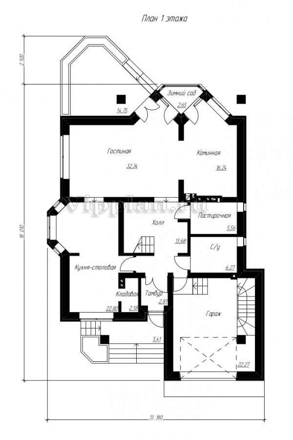
План цокольного этажа


Тамбур — 2,81 м2
Холл — 13,68 м2
Кухня — 22,80 м2
Кладовая — 2,18
С/у — 6,27 м2
Постирочная — 5,56 м2
Гостиная — 32,34 м2
Каминная — 16,24 м2
Зимний сайт — 2,65 м2

План первого этажа


Холл — 13,27 м2
Спальня — 53,19 м2
С/у — 11,87 м2
Спальня — 11,60 м2
Гардероб — 7,25 м2
Спальня — 13,20 м2
Спальня — 13,62 м2

План мансардного этажа



Проект загородного дома с мансардой и гаражом Проект загородного дома с мансардой и гаражом Проект загородного дома с мансардой и гаражом Проект загородного дома с мансардой и гаражом
Внесение изменений и привязка к участку строительства

В любой из проектов от компании VIPplan - Изобильный по вашему желанию могут быть внесены изменения в материалы стен, материалы наружной отделки дома, а также будет произведена адаптация проекта под конкретный регион строительства (с учетом грунтов региона, геологических особенностей вашего участка и местных климатических условий) - БЕСПЛАТНО !!! (кроме проектов со скидкой и проектов наших партнеров).

Любой из проектов, размещенных на сайте izobilnyiy.vipplan.ru мы можем выполнить из требуемых вам строительных материалов: ячеистый бетон (газобетон, пеноблок), керамоблок, кирпич, шлакоблок, бетонный блок, дерево (брус, клееный брус), каркасная технология (деревянный каркас, металлокаркас (ЛСТК)).

Фасад дома и его наружную отделку так же возможно выполнить с применением различных облицовочных материалов: структурной штукатурки, (с утеплителем и без), сайдингом (пластиковый или металлосайдинг), фиброплитами, кирпича.

 
6 Избранные
проекты

Доставка проектов по России: Москва (Московская область), Санкт-Петербург (Ленинградская область), Краснодар, Ростов-на-Дону, Ставрополь, Сочи, Волгоград, Новосибирск, Белгород, Брянск, Воронеж, Саратов, Хабаровск, Астрахань, Нальчик, Владикавказ, Екатеринбург, Тюмень, Самара, Нижний Новгород, Казань, Пермь, Уфа, Челябинск, Красноярск, Ханты-Мансийск, Иркутск, Курган, Оренбург, Омск, Томск, Барнаул, Новокузнецк, Кемерово, Абакан, Чита, Якутск, Южно-Сахалинск, Петропавловск-Камчатский и страны ближнего зарубежья: Белоруссия, Украина, Казахстан