Добро пожаловать на http://vipplan.ru

Випплан Изобильный - это тысячи проектов домов в нашем каталоге!

Вы всегда сможете найти для себя проект дома вашей мечты! Даже если этого не случилось, мы готовы в любую минуту предложить проект индивидуального дома.

Забыли пароль?
Вы еще не регистрировались?

Перейдите по ссылке ниже на страницу регистрации.

Регистрация...

Внимание!!!

В проектную документацию могут быть внесены изменения любой сложности, в соответствии в Вашими пожеланиями!

Полезные статьи

Выбор проекта дома в Изобильном. Типовой или индивидуальный?

Строительство дома начинается с выбора проекта. От него будет зависит удобство, комфорт и функциональность Вашего будущего дома. Какой проект выбрать? В каталоге проектов домов VIPplan Изобильный предоставлен огромный выбор проектов на любой вкус и кошелек. В итоге выбор сводится к покупке типового проекта дома или заказа индивидуального проекта. Для упращения задачи, расскажем о каждом варианте по отдельности...

Установка систем вентиляции

Проектирование и установка систем вентиляции начинается на этапе создания проекта дома, в котором, наряду с газо- и электрификацией, водоснабжением и системой канализации, проектируется система вентиляции...

Проекты домов и коттеджей > Каталог проектов домов > Проект дома с мансардой и гаражом для узкого участка Vg1311

Проект дома с мансардой и гаражом для узкого участка Vg1311

Проект дома с мансардой и гаражом для узкого участка
Зарегистрируйтесь

Проект № Vg1311


Техническое описание
Общая площадь: 146.65 м2
Жилая площадь: 71.07 м2
Высота здания: 7.34 м
Размеры дома: 18.44м×6.04м
Кол-во комнат: 5
Цокольный этаж: нет
Гараж: нет
Мансарда: есть

Kонструкция
Фундамент: Ленточный монолитный ж/б
Перекрытия: Деревянные
Материал стен: Бетонные блоки

Архитектурный раздел
Конструктивный раздел
АР+КР - 52 000 (Со скидкой 20%)
Проект индивидуального одноэтажного жилого дома с размерами 18,44 x 6,04 м. Наружная отделка здания – металлический сайдинг Цоколь – искусственный камень. Фундамент – ленточный, монолитный ж/б Наружные стены запроектированы из: керамзитобетона, утеплителя и сайдинга. Внутренние стены и перегородки - керамзитобетона Перекрытие межэтажное – по деревянным балкам с использованием тепло-шумоизоляционных материалов. Пол этажа – пол по грунту. Крыша - двухскатная. Материал кровли – битумная черепица Окна - металлопластиковые, выполненные по индивидуальному заказу.
Генплан застройки участка / Паспорт проекта 7000 руб / 10000 руб
Инженерный раздел (полный) 73500 руб
Смета на строительство 36750 руб
Теплотехнический расчет материалов стен Бесплатно
Стоимость проекта со незначительнми изменениями 61300 руб
Стоимость проекта со средними изменениями* 72400 руб
Стоимость проекта со значительными изменениями** 75300 руб

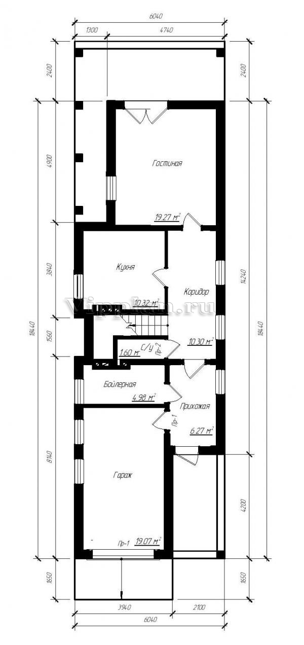
План первого этажа


Гараж — 19,07 кв м
Бойлерная — 4,98 кв м
Прихожая — 6,27 кв м
С/у — 1,60 кв м
Коридор — 10,30 кв м
Кухня — 10,32 кв м
Гостиная — 19,27 кв м

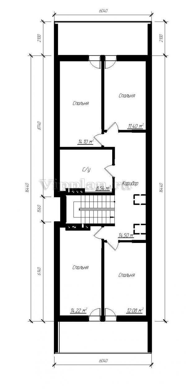
План мансардного этажа


Спальня — 14,22 кв м
Спальня — 12,08 кв м
С/у — 8,54 кв м
Коридор — 14,50 кв м
Спальня — 14,10 кв м
Спальня — 11,40 кв м
Проект дома с мансардой и гаражом для узкого участка Проект дома с мансардой и гаражом для узкого участка Проект дома с мансардой и гаражом для узкого участка Проект дома с мансардой и гаражом для узкого участка
Внесение изменений и привязка к участку строительства

В любой из проектов от компании VIPplan - Изобильный по вашему желанию могут быть внесены изменения в материалы стен, материалы наружной отделки дома, а также будет произведена адаптация проекта под конкретный регион строительства (с учетом грунтов региона, геологических особенностей вашего участка и местных климатических условий) - БЕСПЛАТНО !!! (кроме проектов со скидкой и проектов наших партнеров).

Любой из проектов, размещенных на сайте izobilnyiy.vipplan.ru мы можем выполнить из требуемых вам строительных материалов: ячеистый бетон (газобетон, пеноблок), керамоблок, кирпич, шлакоблок, бетонный блок, дерево (брус, клееный брус), каркасная технология (деревянный каркас, металлокаркас (ЛСТК)).

Фасад дома и его наружную отделку так же возможно выполнить с применением различных облицовочных материалов: структурной штукатурки, (с утеплителем и без), сайдингом (пластиковый или металлосайдинг), фиброплитами, кирпича.

 
6 Избранные
проекты

Доставка проектов по России: Москва (Московская область), Санкт-Петербург (Ленинградская область), Краснодар, Ростов-на-Дону, Ставрополь, Сочи, Волгоград, Новосибирск, Белгород, Брянск, Воронеж, Саратов, Хабаровск, Астрахань, Нальчик, Владикавказ, Екатеринбург, Тюмень, Самара, Нижний Новгород, Казань, Пермь, Уфа, Челябинск, Красноярск, Ханты-Мансийск, Иркутск, Курган, Оренбург, Омск, Томск, Барнаул, Новокузнецк, Кемерово, Абакан, Чита, Якутск, Южно-Сахалинск, Петропавловск-Камчатский и страны ближнего зарубежья: Белоруссия, Украина, Казахстан