Добро пожаловать на http://vipplan.ru

Випплан Изобильный - это тысячи проектов домов в нашем каталоге!

Вы всегда сможете найти для себя проект дома вашей мечты! Даже если этого не случилось, мы готовы в любую минуту предложить проект индивидуального дома.

Забыли пароль?
Вы еще не регистрировались?

Перейдите по ссылке ниже на страницу регистрации.

Регистрация...

Внимание!!!

В проектную документацию могут быть внесены изменения любой сложности, в соответствии в Вашими пожеланиями!

Полезные статьи

Виды фундаментов

Можно смело сказать, что самое главное качество фундамента - надежность. Фундамент дома бывает нескольких видов. Все они отличаются прочностью, технологией закладывания и областью использования. Запомните, экономить на фундаменте – плохая идея. Затраты на ремонт будут огромными, а зачастую в случае нарушения технологии закладки фундамента исправить ошибку будет невозможно....

Уклон кровли дома

Чтобы вода быстрее уходила с кровли Вашего дома, скатам необходимо придать уклон, который выражающийся в процентах или градусах и измеряющийся геодезическими инструментами. Уклон кровли обозначает угол наклона ската к горизонту. Чем больше уклон, тем круче крыша. У новомодных зданий наклон кровли делают не очень большим....

Проекты домов и коттеджей > Каталог проектов домов > Проект уютного комфортабельного коттеджа Vg1219

Проект уютного комфортабельного коттеджа Vg1219

Проект уютного комфортабельного коттеджа
Зарегистрируйтесь

Проект № Vg1219


Техническое описание
Общая площадь: 144.1 м2
Жилая площадь: 82.47 м2
Высота здания: 9.47 м
Размеры дома: 9.84м×10.34м
Кол-во комнат: 4
Цокольный этаж: нет
Гараж: нет
Мансарда: есть

Kонструкция
Фундамент: Ленточный
Перекрытия: Монолитные перекрытия
Материал стен: Газобетон

Архитектурный раздел
Конструктивный раздел
АР+КР - 52 000 (Со скидкой 20%)
Срок разработки проекта — 7 рабочих дней. Проект индивидуального одноэтажного жилого дома с мансардой с размерами здания 9,84 x 10,34 м. Наружная отделка здания - фасадная штукатурка/камень/деревянные панели. Цоколь - отделка камнем. Фундамент — ленточный, монолитный ж/б. Наружные стены: газобетонные блоки,ЭПП, отделка фасада штукатуркой/камнем/деревянными панелями. Внутренние стены выполняются из газобетонных блоков. Перегородки выполняются из кирпича. Перемычки - монолитные и сварные из профиля проката. Пол первого этажа - пол по грунту. Перекрытие над первым этажом - ж/б монолитное. Потолок мансардного этажа - по затяжкам стропильной системы. Крыша двускатная. Материал - гибкая кровля. Окна - металлопластиковые, выполненные по индивидуальному заказу. Лестница -по индивидуальному заказу.
Генплан застройки участка / Паспорт проекта 7000 руб / 10000 руб
Инженерный раздел (полный) 72000 руб
Смета на строительство 36000 руб
Теплотехнический расчет материалов стен Бесплатно
Стоимость проекта со незначительнми изменениями 61400 руб
Стоимость проекта со средними изменениями* 72200 руб
Стоимость проекта со значительными изменениями** 75100 руб

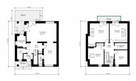
План первого этажа


Тамбур — 2,67 м2
Холл — 7,64 м2
Гостиная — 28,56 м2
Кухня — 14,12 м2
Кладовая — 2,24 м2
Бойлерная — 4,97 м2
С/у — 4,04 м2
Проект уютного комфортабельного коттеджа Проект уютного комфортабельного коттеджа Проект уютного комфортабельного коттеджа Проект уютного комфортабельного коттеджа

Модификации проектов

Внесение изменений и привязка к участку строительства

В любой из проектов от компании VIPplan - Изобильный по вашему желанию могут быть внесены изменения в материалы стен, материалы наружной отделки дома, а также будет произведена адаптация проекта под конкретный регион строительства (с учетом грунтов региона, геологических особенностей вашего участка и местных климатических условий) - БЕСПЛАТНО !!! (кроме проектов со скидкой и проектов наших партнеров).

Любой из проектов, размещенных на сайте izobilnyiy.vipplan.ru мы можем выполнить из требуемых вам строительных материалов: ячеистый бетон (газобетон, пеноблок), керамоблок, кирпич, шлакоблок, бетонный блок, дерево (брус, клееный брус), каркасная технология (деревянный каркас, металлокаркас (ЛСТК)).

Фасад дома и его наружную отделку так же возможно выполнить с применением различных облицовочных материалов: структурной штукатурки, (с утеплителем и без), сайдингом (пластиковый или металлосайдинг), фиброплитами, кирпича.

 
6 Избранные
проекты

Доставка проектов по России: Москва (Московская область), Санкт-Петербург (Ленинградская область), Краснодар, Ростов-на-Дону, Ставрополь, Сочи, Волгоград, Новосибирск, Белгород, Брянск, Воронеж, Саратов, Хабаровск, Астрахань, Нальчик, Владикавказ, Екатеринбург, Тюмень, Самара, Нижний Новгород, Казань, Пермь, Уфа, Челябинск, Красноярск, Ханты-Мансийск, Иркутск, Курган, Оренбург, Омск, Томск, Барнаул, Новокузнецк, Кемерово, Абакан, Чита, Якутск, Южно-Сахалинск, Петропавловск-Камчатский и страны ближнего зарубежья: Белоруссия, Украина, Казахстан