Добро пожаловать на http://vipplan.ru

Випплан Изобильный - это тысячи проектов домов в нашем каталоге!

Вы всегда сможете найти для себя проект дома вашей мечты! Даже если этого не случилось, мы готовы в любую минуту предложить проект индивидуального дома.

Забыли пароль?
Вы еще не регистрировались?

Перейдите по ссылке ниже на страницу регистрации.

Регистрация...

Внимание!!!

В проектную документацию могут быть внесены изменения любой сложности, в соответствии в Вашими пожеланиями!

Полезные статьи

Окна в доме

От хорошего стеклопакета зависит почти 50% теплостойкости всего дома. Ведь на проемы в окнах приходится до 45% тепловых потерь дома. Поэтому хорошие стеклопакеты не пропускают тепло из комнаты и должны противостоять проникновению ветра, влаги и холода с наружной стороны....

Искусственный камень

Среди современных материалов, особого внимания заслуживает искусственный камень. Естественность и красота натурального камня очевидна. Но нужно реально оценивать свои возможности и присмотреться именно к искусственному камню, так как сам искуственный камень и стоимость производства работ с ним в Изобильном значительно дешевле чем натуральный....

Проекты домов и коттеджей > Каталог проектов домов > Проект современного двухэтажного коттеджа Vg1208

Проект современного двухэтажного коттеджа Vg1208

Проект современного двухэтажного коттеджа
Зарегистрируйтесь

Проект № Vg1208


Техническое описание
Общая площадь: 239.32 м2
Жилая площадь: 103.54 м2
Высота здания: 8.9 м
Размеры дома: 15.72м×14.82м
Кол-во комнат: 5
Цокольный этаж: нет
Гараж: нет
Мансарда: нет

Kонструкция
Фундамент: Ленточный
Перекрытия: Монолитные перекрытия
Материал стен: Газобетон

Архитектурный раздел
Конструктивный раздел
АР+КР - 64 000 (Со скидкой 20%)
Срок подготовки данного проекта — 7 рабочих дней. Проект индивидуального двухэтажного жилого дома, размерами 15,72 х 14,82 м. Наружная отделка здания – штукатурка, деревянные панели. Отделка цоколя – камень. Кровля – металлочерепица. Фундамент – ленточный монолитный под несущими стенами. Наружные стены: газобетонные блоки с утеплением минеральной ватой и отделкой штукатуркой и деревянными панелями. Внутренние стены и перегородки – газобетонные блоки и каркасные с ГКЛ. Отделка вентканалов и дымоходов – камень. Перемычки – монолитные и сварные из профиля проката. Пол первого этажа – пол по грунту. Межэтажное перекрытие – монолитная ж/б плита. Чердачное перекрытие - по деревянным балкам с использованием теплошумоизоляционных материалов типа «URSA» в межбалочном пространстве. Крыша многоскатная. Окна металлопластиковые, выполненные по индивидуальному заказу.
Генплан застройки участка / Паспорт проекта 7000 руб / 10000 руб
Инженерный раздел (полный) 119500 руб
Смета на строительство 59750 руб
Теплотехнический расчет материалов стен Бесплатно
Стоимость проекта со незначительнми изменениями 74000 руб
Стоимость проекта со средними изменениями* 92000 руб
Стоимость проекта со значительными изменениями** 96700 руб

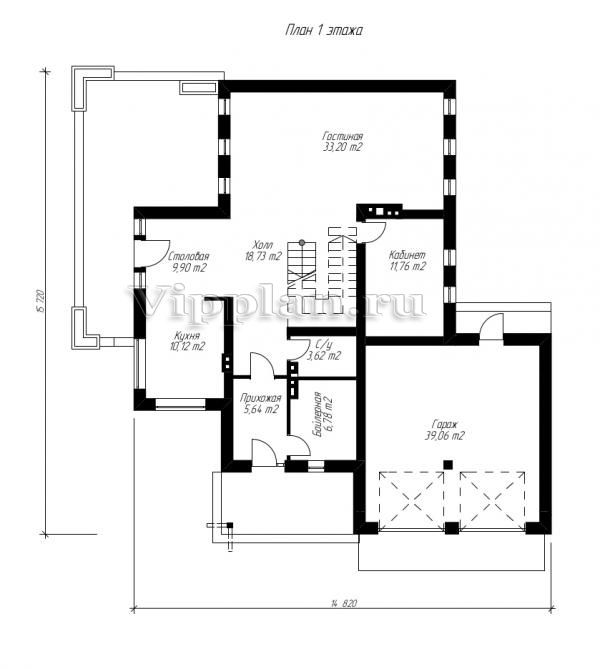
План первого этажа


Прихожая — 5,64 м2
Кухня — 10,12 м2
Столовая — 9,90 м2
Холл — 18,73 м2
Гостиная — 33,20 м2
Кабинет — 11,76 м2
С/у — 3,62 м2
Бойлерная — 3,62 м2
Гараж — 39,06 м2

Проект современного двухэтажного коттеджа

Проект современного двухэтажного коттеджа

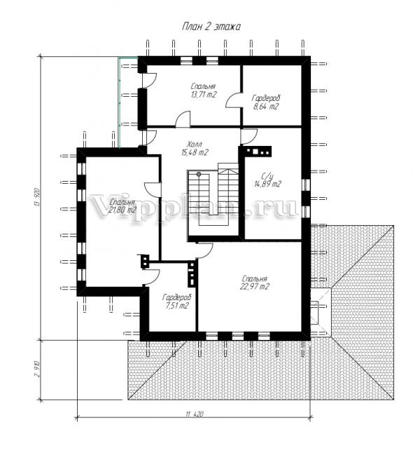
План второго этажа


Холл — 15,48 м2
Спальня — 13,71 м2
Гардероб — 8,64 м2
С/у — 14,89 м2
Спальня — 22,97 м2
Гардероб — 7,51 м2
Спальня — 21,80 м2
Проект современного двухэтажного коттеджа Проект современного двухэтажного коттеджа Проект современного двухэтажного коттеджа Проект современного двухэтажного коттеджа
Внесение изменений и привязка к участку строительства

В любой из проектов от компании VIPplan - Изобильный по вашему желанию могут быть внесены изменения в материалы стен, материалы наружной отделки дома, а также будет произведена адаптация проекта под конкретный регион строительства (с учетом грунтов региона, геологических особенностей вашего участка и местных климатических условий) - БЕСПЛАТНО !!! (кроме проектов со скидкой и проектов наших партнеров).

Любой из проектов, размещенных на сайте izobilnyiy.vipplan.ru мы можем выполнить из требуемых вам строительных материалов: ячеистый бетон (газобетон, пеноблок), керамоблок, кирпич, шлакоблок, бетонный блок, дерево (брус, клееный брус), каркасная технология (деревянный каркас, металлокаркас (ЛСТК)).

Фасад дома и его наружную отделку так же возможно выполнить с применением различных облицовочных материалов: структурной штукатурки, (с утеплителем и без), сайдингом (пластиковый или металлосайдинг), фиброплитами, кирпича.

 
6 Избранные
проекты

Доставка проектов по России: Москва (Московская область), Санкт-Петербург (Ленинградская область), Краснодар, Ростов-на-Дону, Ставрополь, Сочи, Волгоград, Новосибирск, Белгород, Брянск, Воронеж, Саратов, Хабаровск, Астрахань, Нальчик, Владикавказ, Екатеринбург, Тюмень, Самара, Нижний Новгород, Казань, Пермь, Уфа, Челябинск, Красноярск, Ханты-Мансийск, Иркутск, Курган, Оренбург, Омск, Томск, Барнаул, Новокузнецк, Кемерово, Абакан, Чита, Якутск, Южно-Сахалинск, Петропавловск-Камчатский и страны ближнего зарубежья: Белоруссия, Украина, Казахстан