Добро пожаловать на http://vipplan.ru

Випплан Изобильный - это тысячи проектов домов в нашем каталоге!

Вы всегда сможете найти для себя проект дома вашей мечты! Даже если этого не случилось, мы готовы в любую минуту предложить проект индивидуального дома.

Забыли пароль?
Вы еще не регистрировались?

Перейдите по ссылке ниже на страницу регистрации.

Регистрация...

Внимание!!!

В проектную документацию могут быть внесены изменения любой сложности, в соответствии в Вашими пожеланиями!

Полезные статьи

Газобетонные перекрытия

Перекрытия из газобетонных плит, устанавливаются без применения подъемников и кранов. Строители устанавливают прочные и, что немаловажно, легкие газоблоки без помощи техники. Ячеистый бетон (пенобетон и газобетон) нашел широкое применение в домах из пенобетона и газобетона в Изобильном...

Как сделать мансардную крышу

Мансарда - обеспечивает дополнительную жилую площадь одно- или двухуровневой постройке за счет подкровельного пространства и, благодаря видимым элементам конструкции крыши, выполняет немаловажную эстетическую функцию. Дома с мансардой достаточно распространены в Ставропольском крае благодаря своей привлекательности и неповторимости. ...

Проекты домов и коттеджей > Каталог проектов домов > Проект одноквартирного дома с подвалом Vg1121

Проект одноквартирного дома с подвалом Vg1121

Проект одноквартирного дома с подвалом
Зарегистрируйтесь

Проект № Vg1121


Техническое описание
Общая площадь: 148.14 м2
Высота здания: 7.95 м
Размеры дома: 10.64м×16.64м
Кол-во комнат: 4
Цокольный этаж: нет
Гараж: нет
Мансарда: нет

Kонструкция
Фундамент: Ленточный
Перекрытия: Монолитные перекрытия
Материал стен: Кирпич

Архитектурный раздел
Конструктивный раздел
АР+КР - 52 000 (Со скидкой 20%)
Проект индивидуального одноэтажного одноквартирного жилого дома с подвалом, размерами 10,64 x 16,64 м. Наружная отделка здания -облицовочный кирпич. Цоколь- камень. Фундамент - ленточный, монолитный ж/б . Наружные стены запроектированы из: забутовочного кирпича, экструдированного пенополистирола и облицовочного кирпича. Внутренние стены и перегородки -из кирпича. Перемычки - монолитные и сварные из профиля проката. Перекрытие над первым этажом- по деревянным балкам, с использованием теплошумоизоляционных материалов типа "URSA" в межбалочном пространстве. перекрытие над подвалом — монолитная плита перекрытия, пол первого этажа- по грунту. Крыша – многоскатная. Материал кровли - металлочерепица. Окна - металлопластиковые, выполненные по индивидуальному заказу. Лестница выполняется по индивидуальному заказу.
Генплан застройки участка / Паспорт проекта 7000 руб / 10000 руб
Инженерный раздел (полный) 74000 руб
Смета на строительство 37000 руб
Теплотехнический расчет материалов стен Бесплатно
Стоимость проекта со незначительнми изменениями 61300 руб
Стоимость проекта со средними изменениями* 72400 руб
Стоимость проекта со значительными изменениями** 75400 руб

План цокольного этажа


Помещение — 14,6 м2

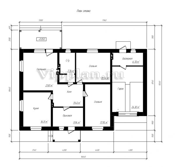
План первого этажа


Прихожая - 9,94 м2
Холл - 11,43 м2
Гостиная - 21,81 м2
С/у - 7,76 м2
Спальня - 17,34 м2
Спальня - 17,95 м2
Бойлерная - 6,70 м2
Гараж - 24,30 м2
Проект одноквартирного дома с подвалом Проект одноквартирного дома с подвалом Проект одноквартирного дома с подвалом Проект одноквартирного дома с подвалом

Модификации проектов

Внесение изменений и привязка к участку строительства

В любой из проектов от компании VIPplan - Изобильный по вашему желанию могут быть внесены изменения в материалы стен, материалы наружной отделки дома, а также будет произведена адаптация проекта под конкретный регион строительства (с учетом грунтов региона, геологических особенностей вашего участка и местных климатических условий) - БЕСПЛАТНО !!! (кроме проектов со скидкой и проектов наших партнеров).

Любой из проектов, размещенных на сайте izobilnyiy.vipplan.ru мы можем выполнить из требуемых вам строительных материалов: ячеистый бетон (газобетон, пеноблок), керамоблок, кирпич, шлакоблок, бетонный блок, дерево (брус, клееный брус), каркасная технология (деревянный каркас, металлокаркас (ЛСТК)).

Фасад дома и его наружную отделку так же возможно выполнить с применением различных облицовочных материалов: структурной штукатурки, (с утеплителем и без), сайдингом (пластиковый или металлосайдинг), фиброплитами, кирпича.

 
6 Избранные
проекты

Доставка проектов по России: Москва (Московская область), Санкт-Петербург (Ленинградская область), Краснодар, Ростов-на-Дону, Ставрополь, Сочи, Волгоград, Новосибирск, Белгород, Брянск, Воронеж, Саратов, Хабаровск, Астрахань, Нальчик, Владикавказ, Екатеринбург, Тюмень, Самара, Нижний Новгород, Казань, Пермь, Уфа, Челябинск, Красноярск, Ханты-Мансийск, Иркутск, Курган, Оренбург, Омск, Томск, Барнаул, Новокузнецк, Кемерово, Абакан, Чита, Якутск, Южно-Сахалинск, Петропавловск-Камчатский и страны ближнего зарубежья: Белоруссия, Украина, Казахстан